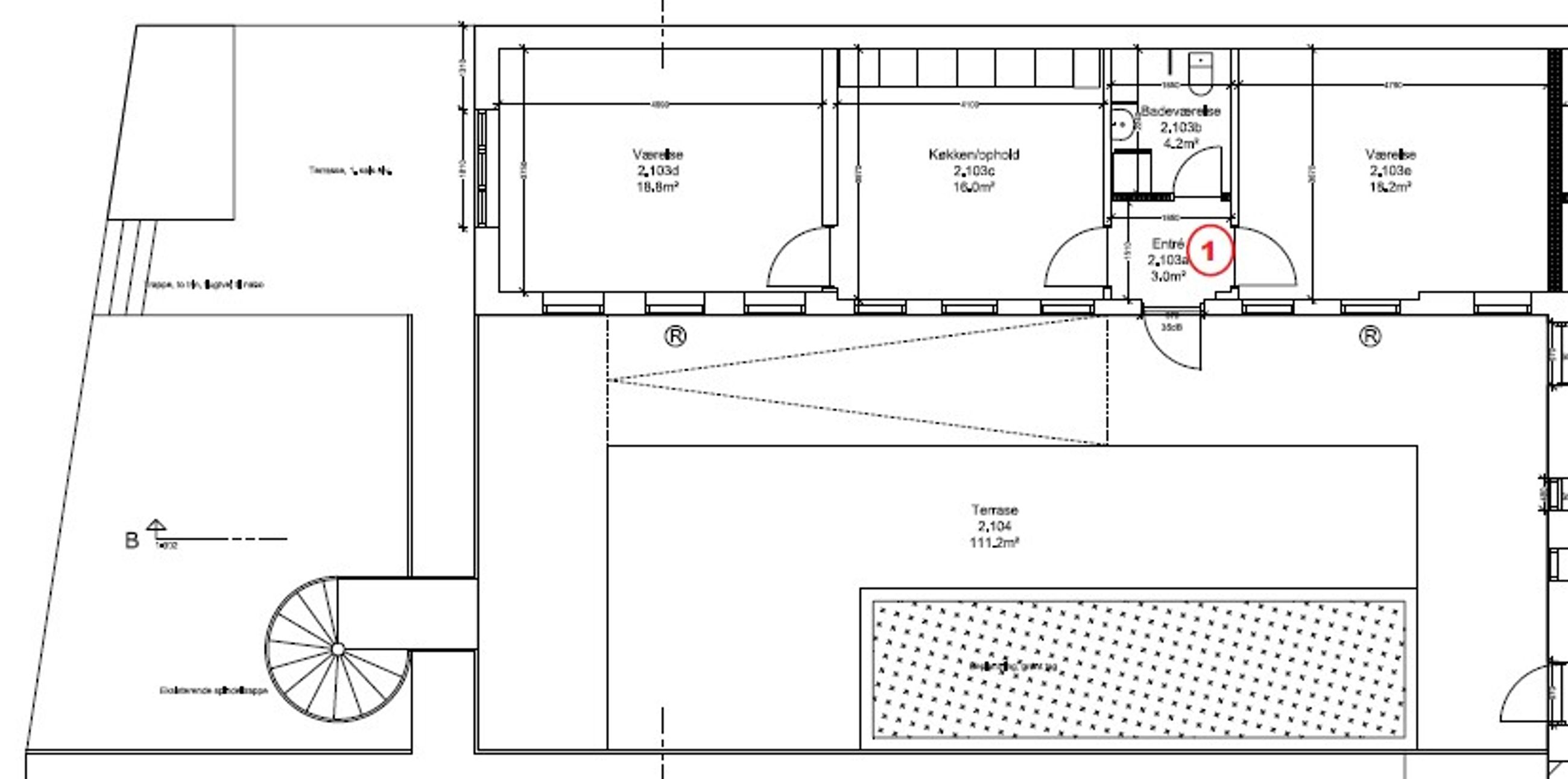
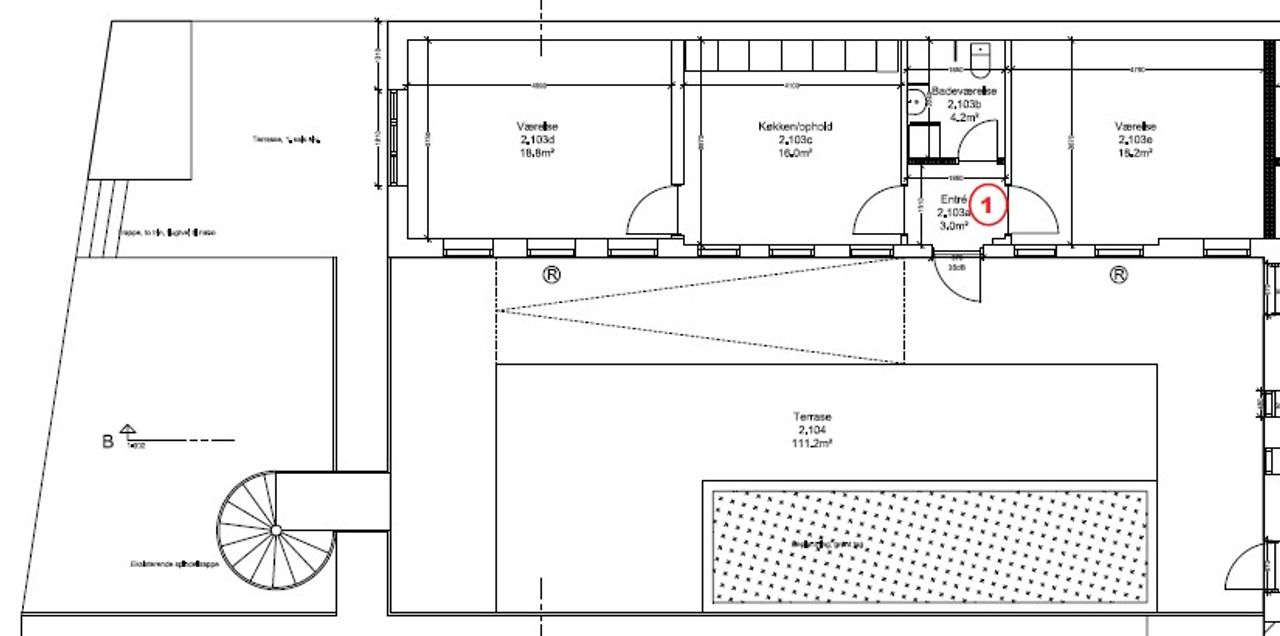
Delevenlig lejlighed med fælles tagterrasse i Aarhus C
Meget attraktiv lejlighed i Ryesgade i hjertet af Aarhus C med adgang til stor, fælles tagterrasse. Lejligheden byder på flotte, fritliggende bjælker og en indretning, der gør den perfekt som delebolig. En charmerende bolig med både byliv og ro.
* Der samles ingen personlige oplysninger uden dit udtrykkelige samtykke.
Ved at klikke på denne checkboks giver du dit samtykke til, at dine data samles og behandles af RealMæglerne A/S for at kunne kontakte dig.
Du kan til enhver tid tilbagekalde dit samtykke. For at gøre dette skal du blot sende en meddelelse til info@realmaeglerne.dk.
Læs mere på privatlivspolitikkerne.
Glemt adgangskode
Tilmeldt via. mægler
Kontakt Mægler
Tak for din interesse
Mægleren vil kontakte dig hurtigst muligt
Tak for din tilmelding til åbent hus!
Adresse:
Dato:
Tidspunkt:
Vi glæder os til at vise dig boligen. Har du spørgsmål inden vi ses, kan du kontakte fra RealMæglerne
Vi glæder os til at vise dig boligen. Har du spørgsmål inden vi ses, er du velkommen til at kontakte os