Denne charmerende ejendom fra 1935 står utroligt velholdt og gennemført, og det mærkes straks, når man træder indenfor. Her får du et hjem, hvor alle de store poster allerede er taget – inklusiv tag og vinduer – og hvor løbende opdateringer har gjort huset både tidssvarende og enormt indbydende. Det tidligere liv som to-families ejendom betyder, at man får en sjældent god rumfordeling og masser af plads at brede sig på. Ejendommen opvarmes med fjernvarme og fremstår med et flot energimærke C.
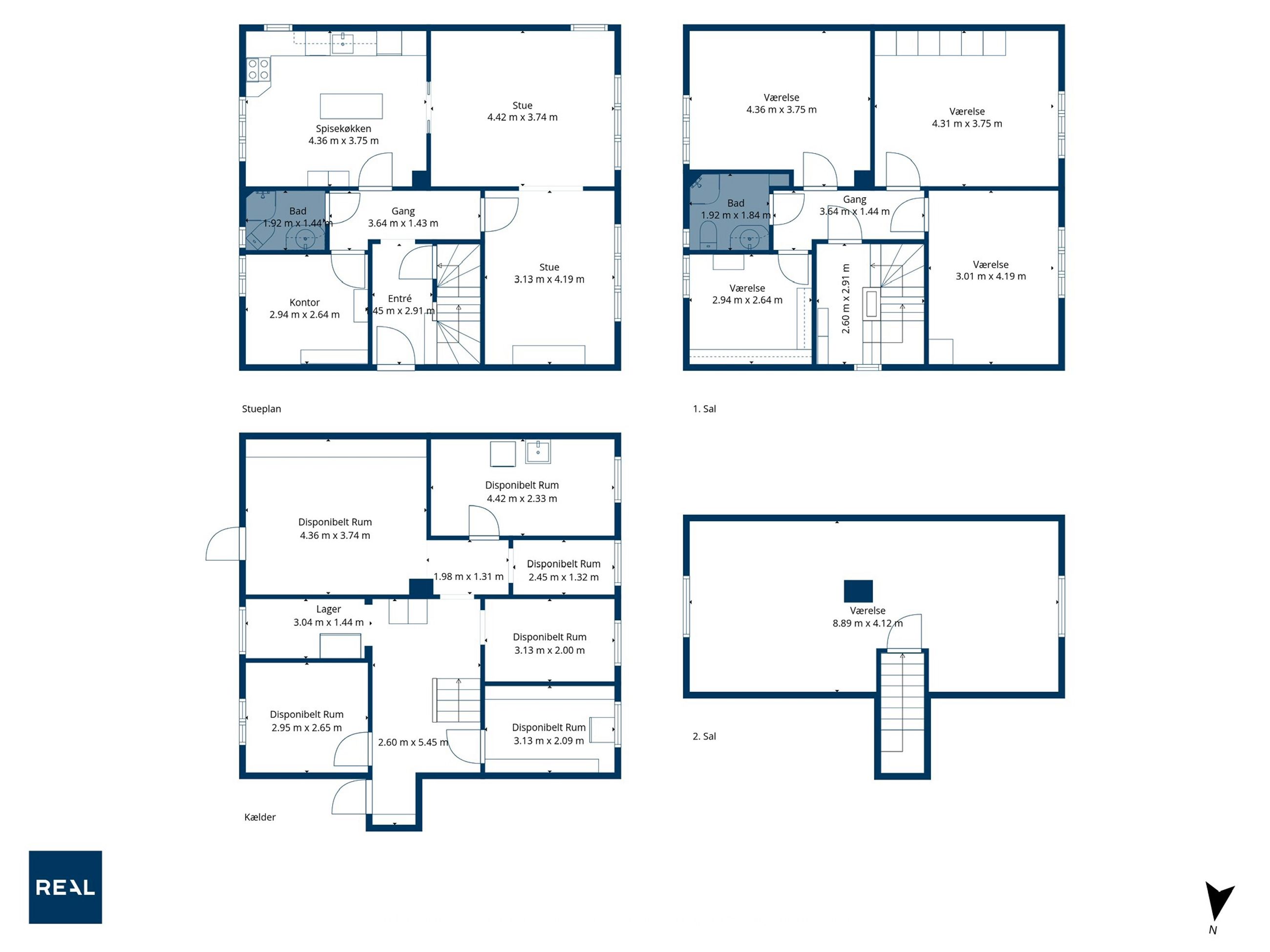
Stueplan rummer et køkken-alrum med god funktionalitet og plads til hverdagen, mens to sammenhængende stuer skaber et elegant og hyggeligt opholdsrum. Selve køkkenet er ikke lyst, men huset kompenserer i dén grad med et fantastisk lysindfald i både stuer og værelser, hvilket giver en helt særlig varme. Et ekstra værelse og et pænt badeværelse fuldender etagen på praktisk vis.
Når man bevæger sig op ad den sindssygt flotte trappe – et af husets helt store æstetiske højdepunkter – åbner 1. salen sig med tre rigtig gode værelser, der alle fremstår både velholdte og lette at indrette. Øverst oppe ligger 2. salen, som i dag er indrettet som et ekstra værelse. Rummet er imponerende flot og tilfører huset en ekstra dimension af charme og karakter.
Kælderen på hele 83 m2 byder på flere disponible rum, hvor en del ligger i åbent terræn og derfor fremstår mere brugbar og imødekommende end en traditionel kælder. Her får du oplagte muligheder for hobbyrum, opbevaring eller kreativ indretning.
Alt sammen ligger det i et dejligt og roligt område tæt på både den danske og tyske skole, smuk natur og Haderslevs hyggelige gågade. Det er et hjem, hvor sjæl, velholdte detaljer og flotte håndværksmæssige løsninger går op i en højere enhed – og et sted, hvor man med det samme kan mærke, at der er blevet passet godt på tingene.