Filosofgang 9 er et smukt og karakterfuldt byhus med en lang historie, der går helt tilbage til opførelsesåret 1890. Her får man en ejendom, hvor den klassiske arkitektur og den historiske sjæl er bevaret, samtidig med at huset er totalrenoveret i 2014 og i dag lever fuldt op til moderne krav om komfort og funktionalitet. Renoveringen er udført med stor respekt for husets oprindelse, hvilket blandt andet ses i de bevarede detaljer og den gennemgående atmosfære, som man sjældent finder i nyere byggeri.
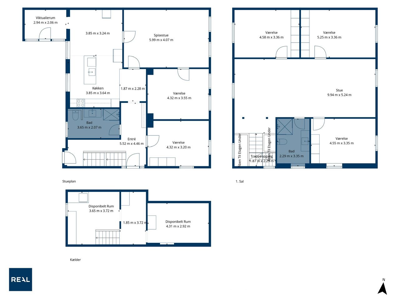
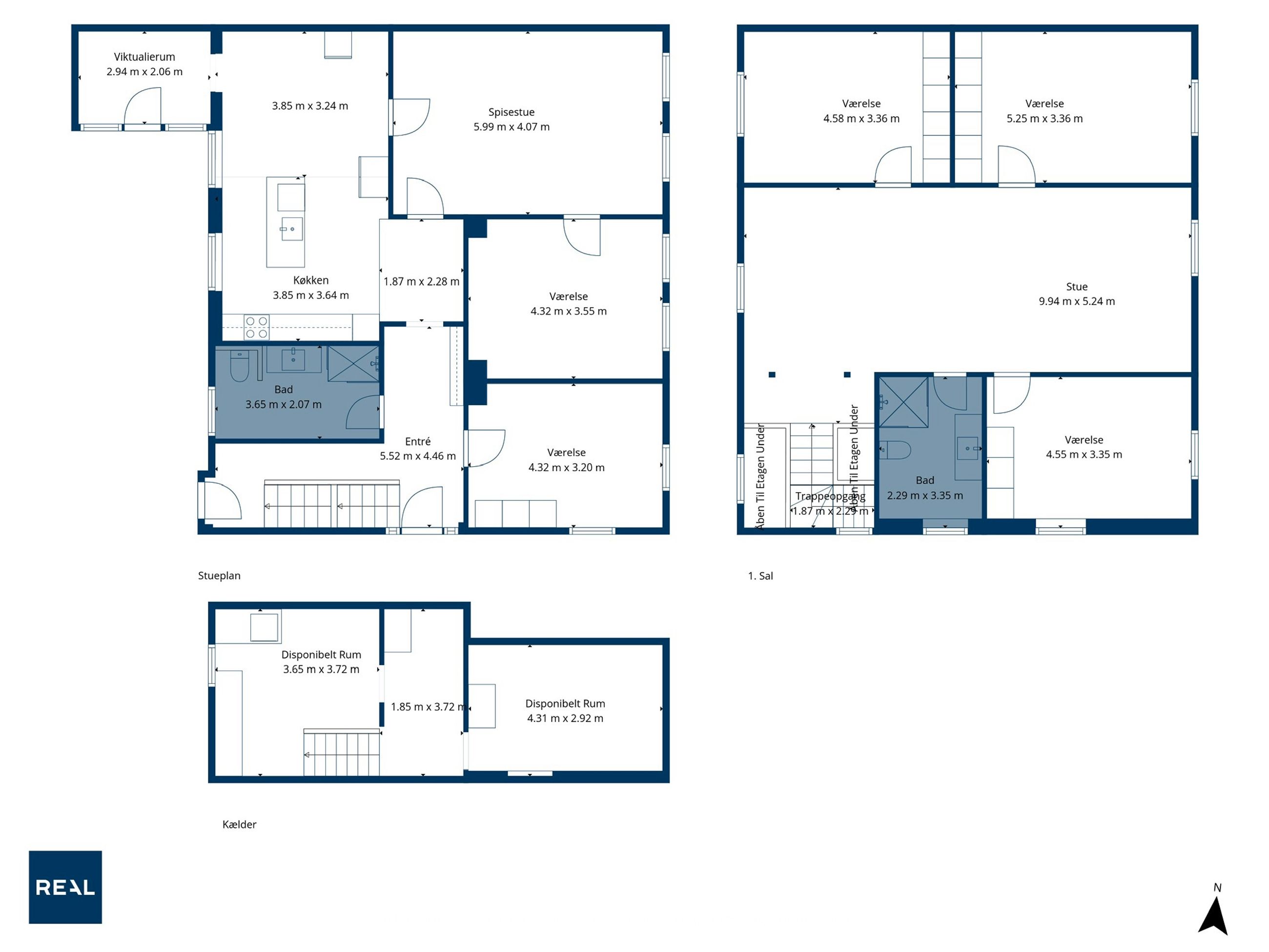
Ejendommen rummer i alt 210 kvadratmeter boligareal og er indrettet med en gennemtænkt planløsning, der udnytter husets størrelse optimalt. I stueplan mødes man af en dejlig loftshøjde og en særlig stemning, hvor det originale stuk er bevaret og bidrager til det historiske udtryk. Her findes to værelser, et kæmpe køkken-alrum med masser af plads til både hverdag og gæster, et ekstra rum samt en rigtig fin spisestue. Badeværelset i stueplan er udført i en stil, der harmonerer flot med resten af huset, og der er gulvvarme i en stor del af huset, hvilket giver en behagelig komfort i hverdagen.
På førstesalen fortsætter den gode rumfornemmelse med tre store værelser og et meget rummeligt repos, som i dag fungerer som stue og giver huset endnu et opholdsrum med mange anvendelsesmuligheder. Også her opleves den gode loftshøjde, som er kendetegnende for ældre, gedigne ejendomme, og der er ligeledes et badeværelse på førstesalen, hvilket gør huset særdeles velfungerende for en familie med behov for flere bad.
Derudover er der 40 kvadratmeter kælder, som er både fin og brugbar og har en god loftshøjde. Kælderen giver ekstra plads til opbevaring, hobby, vinrum eller andre formål, hvor man ønsker kvadratmeter ud over boligarealet. Ejendommen er beliggende på en helt særlig adresse, hvor man bor centralt i Haderslev og tæt på byens historiske miljø, samtidig med at der – modsat mange andre byhuse – er god plads til parkering både for beboere og gæster. Grunden udgør 431 kvadratmeter og giver en sjælden kombination af bynær beliggenhed, funktionel plads og nem hverdag. Her får man en helt unik mulighed for at bo i et historisk byhus med moderne komfort og praktiske løsninger, som sjældent findes i denne del af byen.