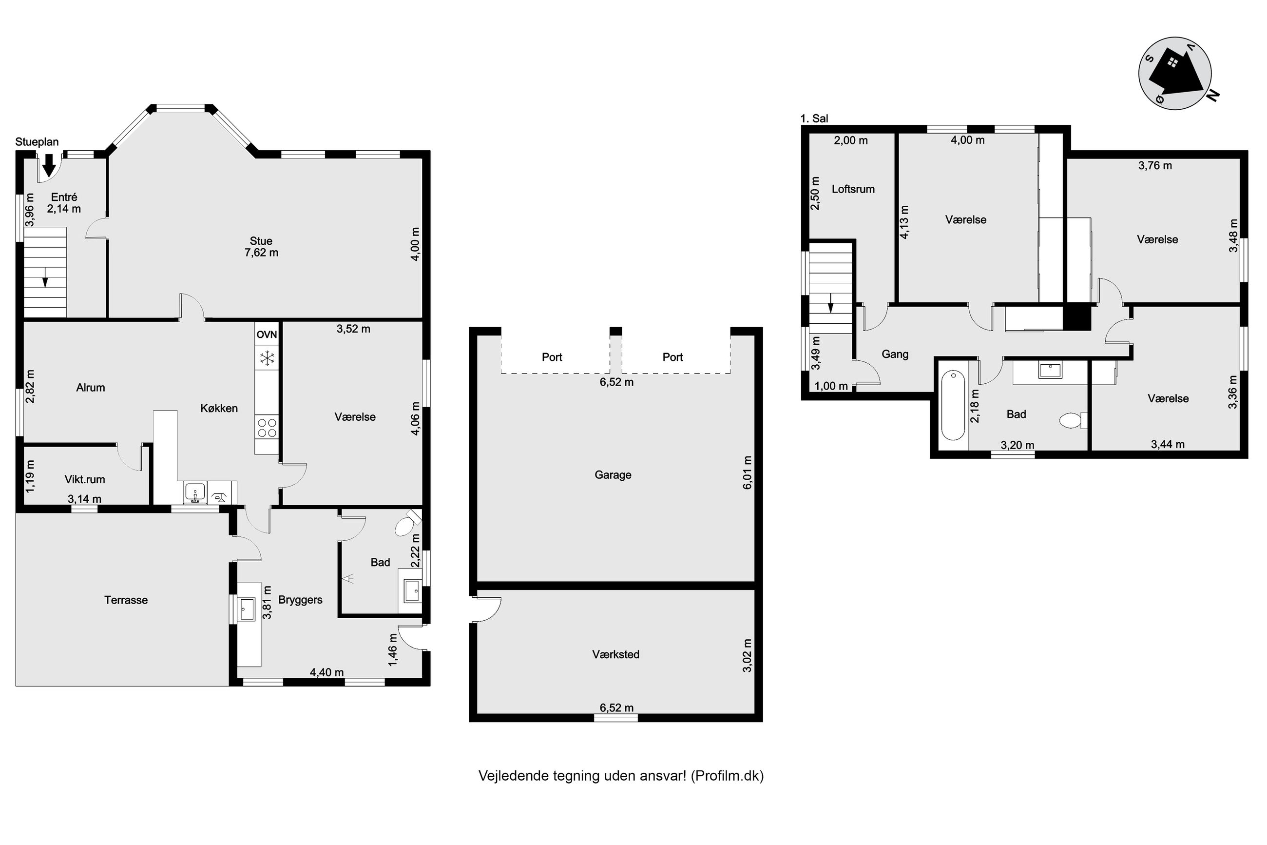
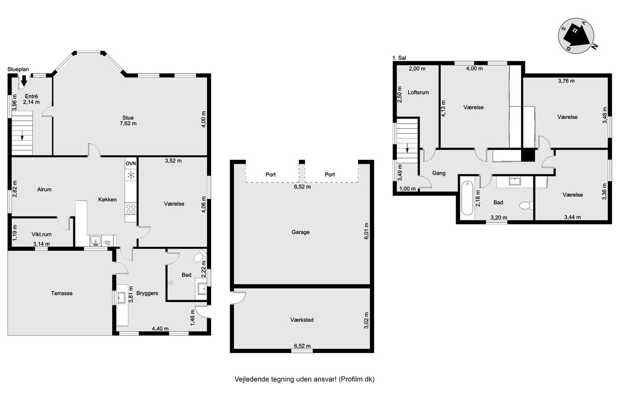
Her får du en velholdt bolig, hvor klassisk atmosfære møder moderne forbedringer som gulvvarme i størstedelen af underetagen, nyere badeværelse samt energieffektiv varmepumpe, der opvarmer hele boligen.
I stueplan bydes du velkommen i et stort og funktionelt bryggers med god opbevaringsplads. Herfra er der adgang til det indbydende køkken-alrum samt et praktisk viktualierum. Den rummelige stue har et dejligt lysindfald og god plads til både opholds- og spiseafdeling. Derudover findes et stort værelse i underetagen.
Overetagen rummer hele tre gode og store værelser samt et badeværelse, hvilket gør boligen velegnet til både børnefamilien eller dem, der ønsker ekstra plads.
Ejendommen er løbende passet og plejet af nuværende ejer og fremstår med vedligeholdelsesfrie vinduer, flot sort tag og en pæn og velholdt facade.
På grunden findes desuden en garage på hele 66 m2, som giver rig mulighed for både bil, værksted eller opbevaring. Hertil kommer en helt fantastisk udsigt over åbne marker, som skaber ro og naturskønne omgivelser.
En bolig med masser af plads, charme og moderne komfort – og med naturen lige uden for døren.