Denne skønne bolig på Højager ligger i et børnevenligt område med trygge stier, stille boligveje uden gennemkørsel samt et fællesområde med gode parkeringsforhold og egen carport. Placeringen gør hverdagen nem med kort vej til både skole, indkøb og Jellings mange fritids- og kulturtilbud. Derudover er der gode forbindelser med offentlig transport og ikke langt til Vejle.
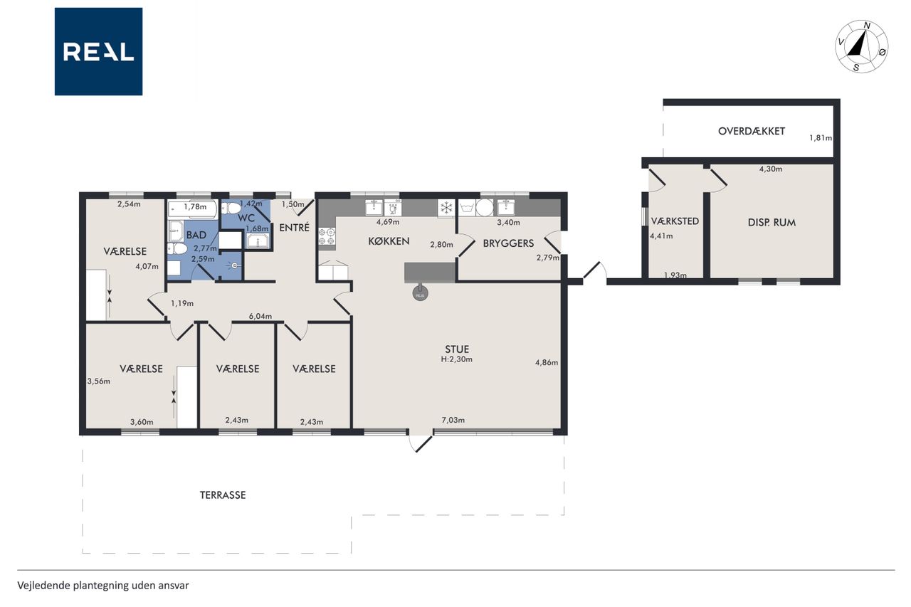
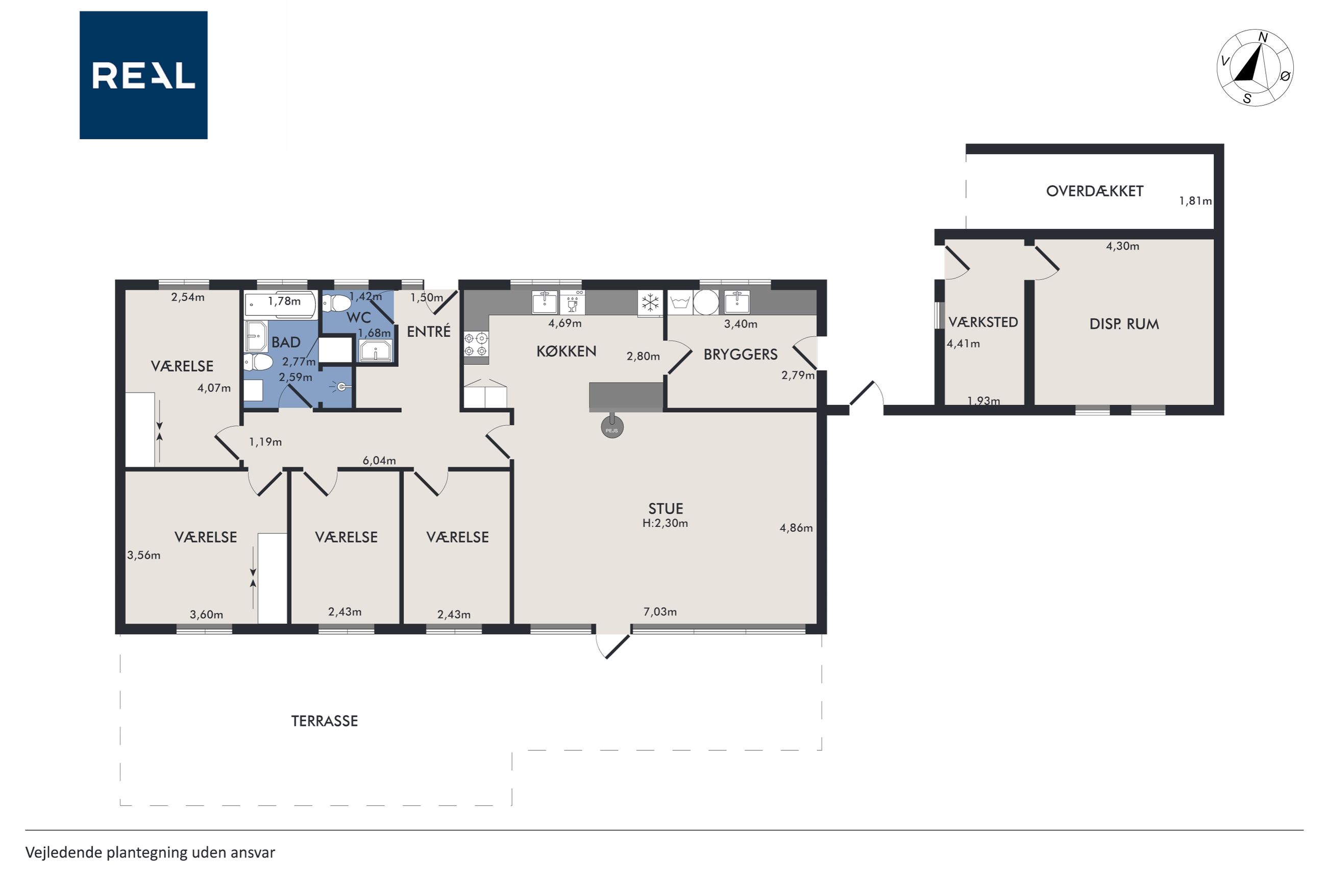
Indgangen til huset sker via en lys entré med god plads til overtøj. Køkkenet er integreret med både spiseafdeling og stue, hvilket skaber en åben og indbydende atmosfære med masser af naturligt lys. Det er indrettet med lyse elementer, indbyggede spots, træbordplade og parketgulve, som går igen i størstedelen af huset. I spisestue og stue sørger store vinduer for et dejligt lysindfald, og der er rigeligt med plads til både spisebord og hyggelig sofasektion. Det klinkebelagte badeværelse har gulvvarme, bruseniche, badekar, toilet, vask og skabsplads, mens gæstetoilettet byder på små klinker, toilet, vask og skab.
Boligen rummer et soveværelse samt tre værelser, alle med parketgulve. Soveværelset er rummeligt og lyst og med generøs skabsplads. To af værelserne er næsten ens i størrelse og velegnede som børneværelser, mens det tredje både kan bruges som ekstra værelse eller indrettes til kontor efter behov. Bryggerset har praktisk egen indgang, her er rigelig skabsplads, vask, bordplads og plads til vaskemaskine og tørretumbler.
Udendørs finder man en stor træterrasse med gode solforhold – perfekt til sommerdage. Derudover rummer grunden et større udhus/anneks med to rum; det ene fungerer som opbevaringsplads til haveudstyr, mens det andet kan omdannes til eksempelvis hobbyrum eller teenageafdeling med relativt få tilpasninger. Herudover er der i 2019 opført et godt overdækket areal til opbevaring af brænde og cykler. Grunden er på 800 m2 og primært udlagt som græsplæne.