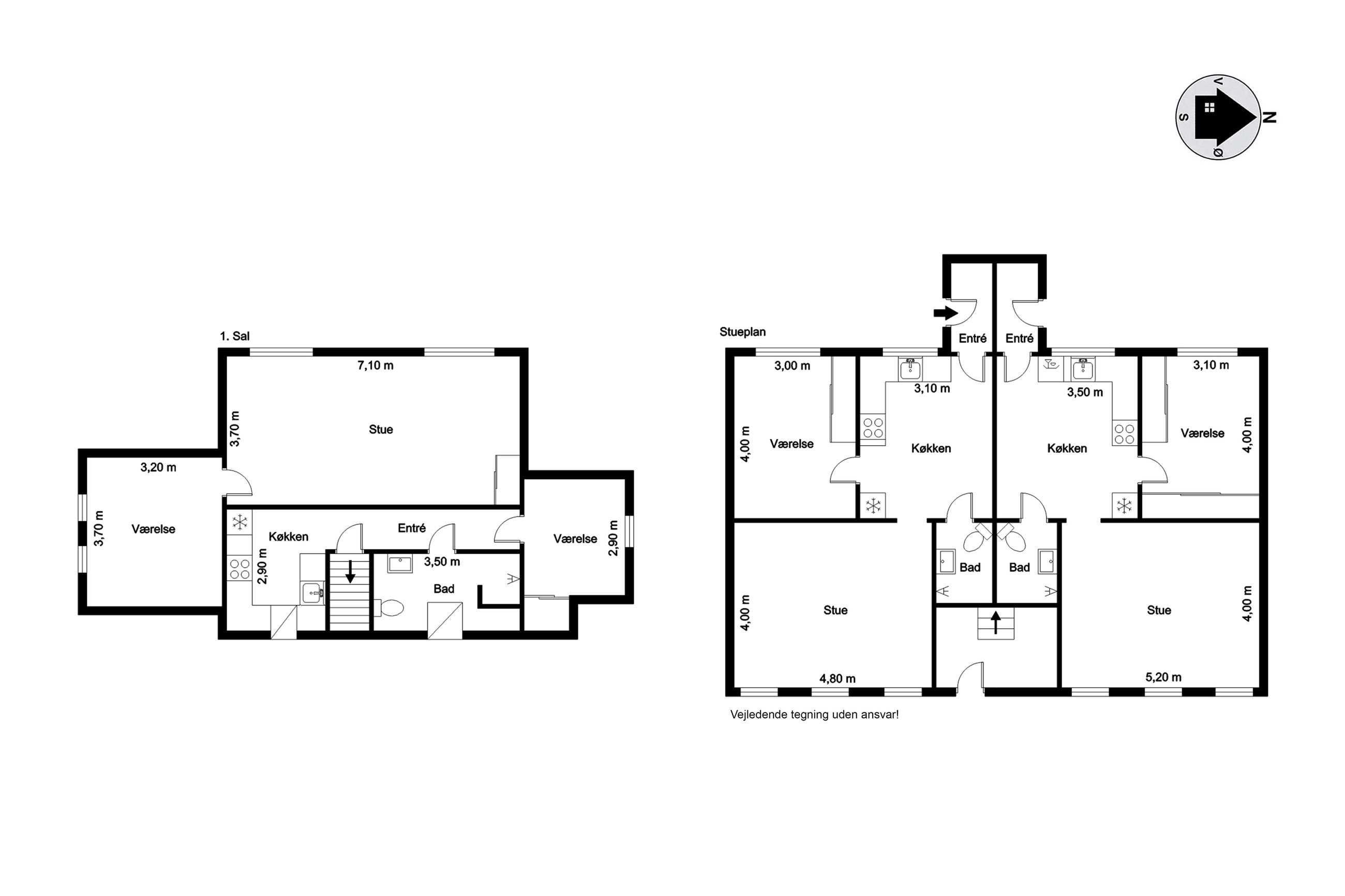
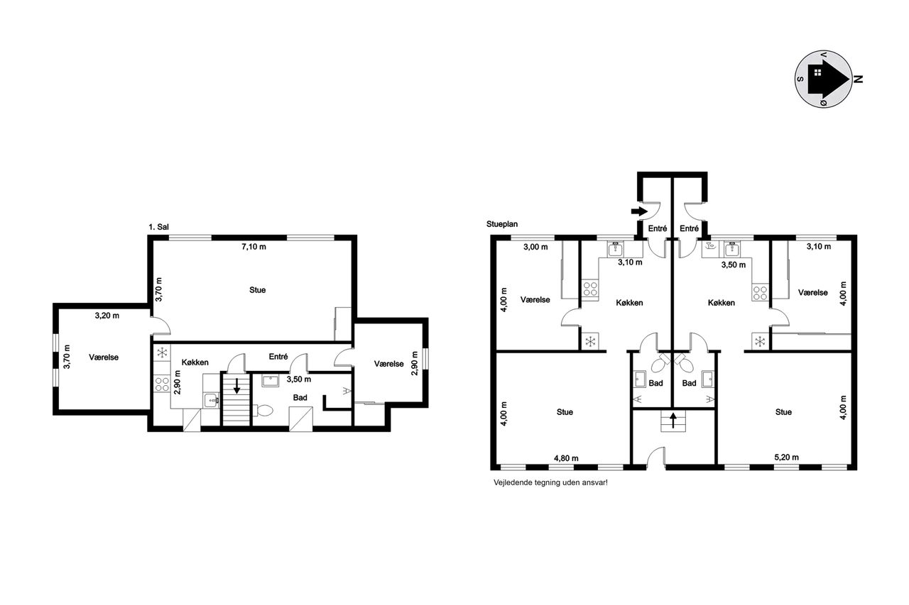
God Erhvervsejendom med 3 fine lejligheder - Plus en tilhørende Garagebygning og en god lukket have. Ejendommen ligger i den sydlige del af byen - tæt på byens centrum og med en god placering når man gerne vil benytte ejendommen til erhverv/udlejning. Stationsbyen Brørup og har gode indkøbsmuligheder, dagligvareforretninger og spisesteder og har endvidere både bibliotek, biograf, idrætshal, friluftsbad samt bowlingcenter og Brørup Marked som er kendt i det ganske land. Desuden er der nem forbindelse til motorvejen E20. Ejendommen er løbende istandsat og er lige klar til overtagelse. Ejendommen indeholder:1: Stueetage: på 63 m2 med køkken og badeværelse samt opholdsstue og værelse.2: Stueetage: på 58 m2 med køkken, badeværelse samt opholdsstue og værelse.3: 1.salen på 83 m2 m2 med køkken og badeværelse samt soveværelse, værelse og opholdsstue. Kontakt os for flere oplysninger om de gode muligheder og omkring driften af ejendommen. Ring 7538 1988 - Tøt Jensen
* Der samles ingen personlige oplysninger uden dit udtrykkelige samtykke.
Ved at klikke på denne checkboks giver du dit samtykke til, at dine data samles og behandles af RealMæglerne A/S for at kunne kontakte dig.
Du kan til enhver tid tilbagekalde dit samtykke. For at gøre dette skal du blot sende en meddelelse til info@realmaeglerne.dk.
Læs mere på privatlivspolitikkerne.
Glemt adgangskode
Tilmeldt via. mægler
Kontakt Mægler
Tak for din interesse
Mægleren vil kontakte dig hurtigst muligt
Tak for din tilmelding til åbent hus!
Adresse:
Dato:
Tidspunkt:
Vi glæder os til at vise dig boligen. Har du spørgsmål inden vi ses, kan du kontakte fra RealMæglerne
Vi glæder os til at vise dig boligen. Har du spørgsmål inden vi ses, er du velkommen til at kontakte os