Søg bolig

0 Boliger til salg

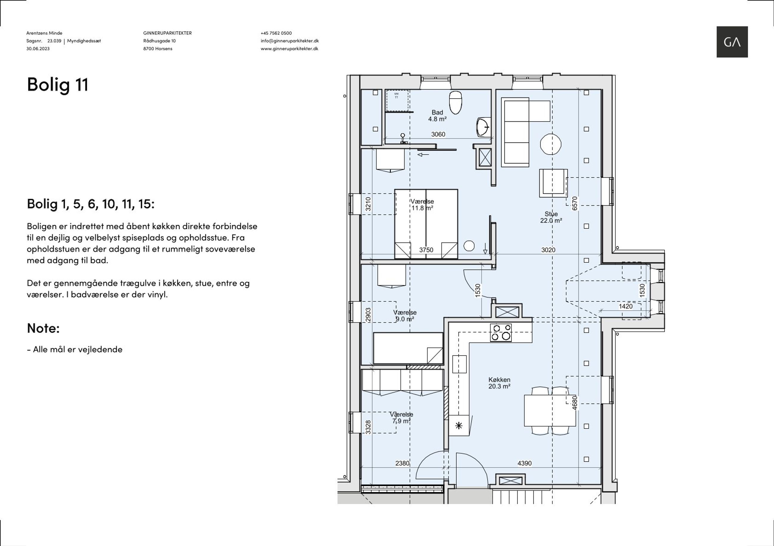
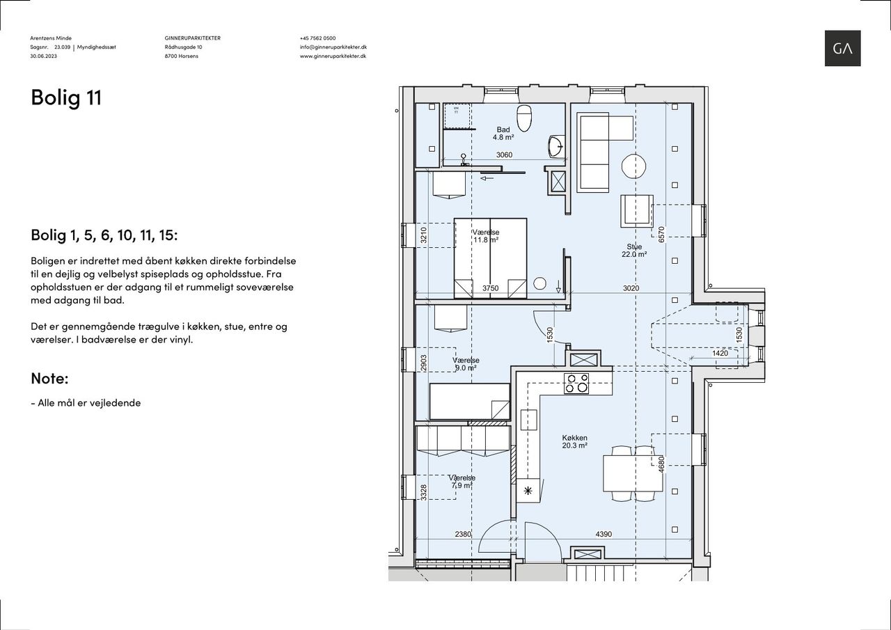
Stjernholmsgade 19, 2. 11 8700 Horsens

Sagsnummer 700-0053
Boligtype Lejebolig
Boligareal 94 m2
Bygget/ombygget 1895 / 1996
Antal rum 4
   
Energimærke
   

Leje pr. måned kr. 8.593

Forbrugsudgift pr. md. kr. 800
- Aconto varme pr. md. kr. 600
- Aconto vand pr. md. kr. 200
Depositum kr. 25.779
Forudbetalt leje kr. 8.593


Kom til fremvisning

Kontakt

Mads Grabow
Mail: mg@mailreal.dk
Tlf.: 5458 3061

RealMæglerne Boligbutikken Horsens ApS
R700 Allegade 1H tv.. 8700 Horsens Mail: 8700@mailreal.dk
Tlf.: 7216 1700


Arentzens Minde - nyrenoveret seniorbolig til leje i markant og centralt beliggende ejendom

I den charmerende bygning Arentzens Minde på Stjernholmsgade 19 udlejes nyistandsat seniorbolig. Boligen er centralt placeret i Horsens med gåafstand til både gågaden, havnen, Lunden og indkøbsmuligheder. Denne skønne 4-værelses lejlighed på 94 m2 er klar til indflytning og indeholder moderne

.. Læs mere...

Kontakt

Mads Grabow
Mail: mg@mailreal.dk
Tlf.: 5458 3061

RealMæglerne Boligbutikken Horsens ApS
Allegade 1H tv..
8700 Horsens
Mail: 8700@mailreal.dk
Tlf.: 7216 1700

Skriv din pris

Giv et uforpligtende bud. Dit bud er ikke bindende for dig, ligesom sælger ikke er forpligtet til at acceptere dit bud.

* Der samles ingen personlige oplysninger uden dit udtrykkelige samtykke. Ved at klikke på denne checkboks giver du dit samtykke til, at dine data samles og behandles af RealMæglerne A/S for at kunne kontakte dig. Du kan til enhver tid tilbagekalde dit samtykke. For at gøre dette skal du blot sende en meddelelse til info@realmaeglerne.dk. Læs mere på privatlivspolitikkerne.

Bestil Salgsopstilling

* Der samles ingen personlige oplysninger uden dit udtrykkelige samtykke. Ved at klikke på denne checkboks giver du dit samtykke til, at dine data samles og behandles af RealMæglerne A/S for at kunne kontakte dig. Du kan til enhver tid tilbagekalde dit samtykke. For at gøre dette skal du blot sende en meddelelse til info@realmaeglerne.dk. Læs mere på privatlivspolitikkerne.

Bestil fremvisning

Ved at indsende formularen, giver du dit samtykke til, at dine data samles og behandles af RealMæglerne A/S for at kunne kontakte dig. Du kan til enhver tid tilbagekalde dit samtykke. For at gøre dette skal du blot sende en meddelelse til info@realmaeglerne.dk. Læs mere på privatlivspolitikkerne.
Fandt du ikke det du søgte? - Opret dig som bruger og få mere ud af din boligsøgning
Dit RealMæglerne

Log ind på RealMæglernes Boligagent

Med Mit RealMæglerne er det nemt at følge boligmarkedet. Leder du efter nyt, kan du gemme dine favorit boliger og målrette din søgning ned til mindste detalje. Skal du sælge, kan du løbende følge interessen for din bolig og meget mere.


Kontakt Mægler

Din bolig

* Der samles ingen personlige oplysninger uden dit udtrykkelige samtykke. Ved at klikke på denne checkboks giver du dit samtykke til, at dine data samles og behandles af RealMæglerne A/S for at kunne kontakte dig. Du kan til enhver tid tilbagekalde dit samtykke. For at gøre dette skal du blot sende en meddelelse til info@realmaeglerne.dk. Læs mere på privatlivspolitikkerne.

Tilmeld til åbent hus

Adresse:
Dato:
Tidspunkt:

Kontakt Mægler

* Der samles ingen personlige oplysninger uden dit udtrykkelige samtykke. Ved at klikke på denne checkboks giver du dit samtykke til, at dine data samles og behandles af RealMæglerne A/S for at kunne kontakte dig. Du kan til enhver tid tilbagekalde dit samtykke. For at gøre dette skal du blot sende en meddelelse til info@realmaeglerne.dk. Læs mere på privatlivspolitikkerne.

Bestil gratis salgsvurdering

Din bolig

Send salgsvurdering til:

Vælg mægler

* Der samles ingen personlige oplysninger uden dit udtrykkelige samtykke. Ved at klikke på denne checkboks giver du dit samtykke til, at dine data samles og behandles af RealMæglerne A/S for at kunne kontakte dig. Du kan til enhver tid tilbagekalde dit samtykke. For at gøre dette skal du blot sende en meddelelse til info@realmaeglerne.dk. Læs mere på privatlivspolitikkerne.

Bestil gratis salgsvurdering

Din bolig

Send salgsvurdering til:

Vælg mægler

* Der samles ingen personlige oplysninger uden dit udtrykkelige samtykke. Ved at klikke på denne checkboks giver du dit samtykke til, at dine data samles og behandles af RealMæglerne A/S for at kunne kontakte dig. Du kan til enhver tid tilbagekalde dit samtykke. For at gøre dette skal du blot sende en meddelelse til info@realmaeglerne.dk. Læs mere på privatlivspolitikkerne.