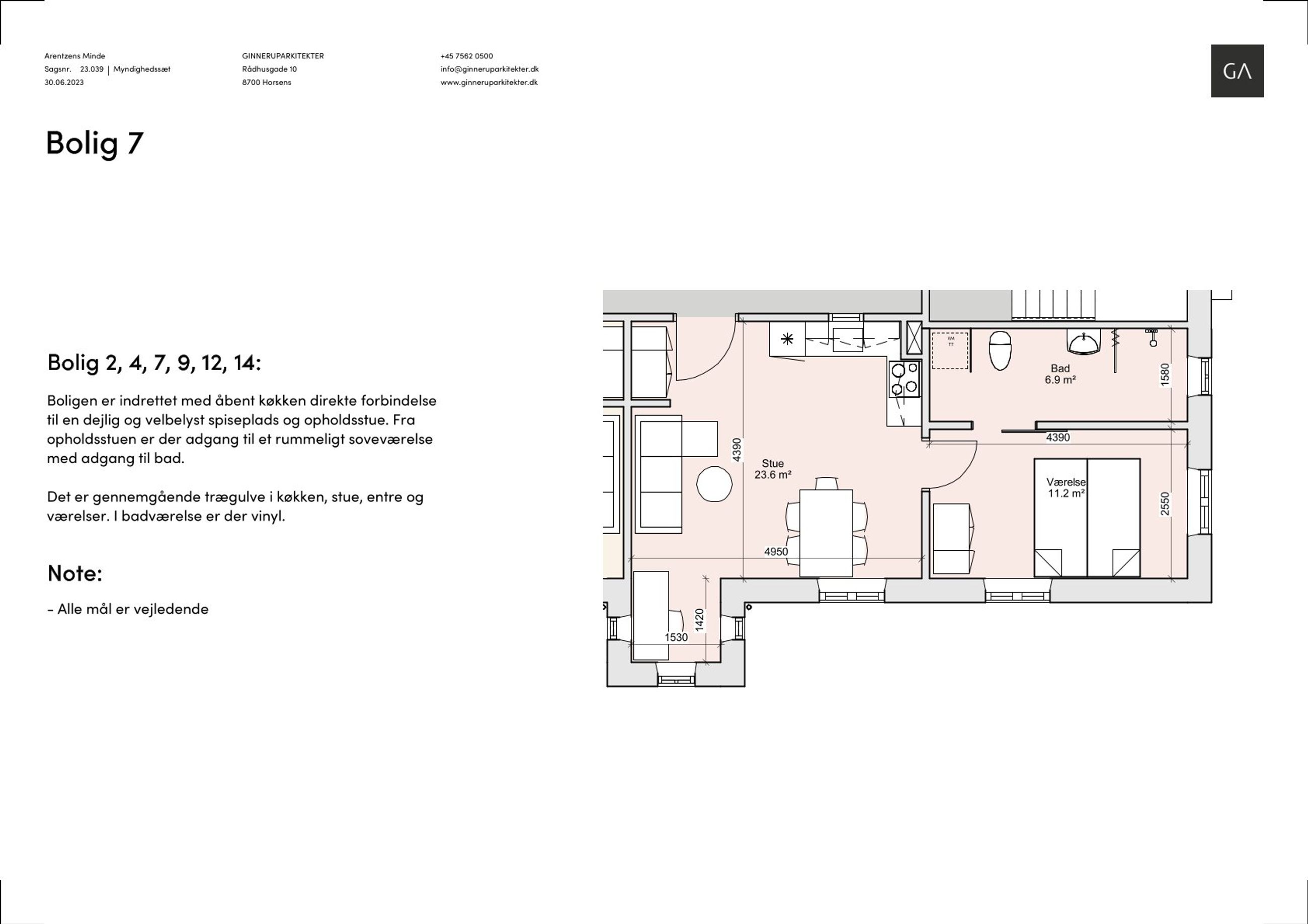
I den charmerende bygning Arentzens Minde på Stjernholmsgade 19 udlejes nyistandsat seniorbolig. Boligen er centralt placeret i Horsens med gåafstand til både gågaden, havnen, Lunden og indkøbsmuligheder. Denne skønne 2-værelses lejlighed på 51 m2 er klar til indflytning og indeholder moderne køkken/stue, soveværelse med indbyggede skabe samt badeværelse med mulighed for at vaskemaskine. Med til boligen følger både eget depotrum og adgang til et fælles skur, der deles mellem ejendommens beboere. Det er desuden muligt at leje en fast parkeringsplads.
Bygningen har elevator og niveaufri adgang fra kælder til kvist, så det er nemt at komme rundt. Vinduer og døre er nænsomt renoveret og isat igen, så husets oprindelige charme bevares. Fællesarealerne er opdateret med ny gulvbelægning, frisk maling og indbydende belysning.
I kælderen er der et stort køkken og et hyggeligt fælleslokale med plads til ca. 20 personer; Oplagt til sammenkomster. Der er også etableret et tørrerum til beboernes brug.
Udenfor er der skabt skønne rammer for fællesskab og ro. Terrasserne er frisket op, der er opført et orangeri, og i haven er der anlagt forskellige blomster- og plantebede, som giver farve, liv og små grønne oaser at nyde.
Det er muligt at søge boligstøtte til lejlighederne. Læs mere og beregn din boligstøtte på borger.dk.