Søg bolig

0 Boliger til salg

Engvej 30, 5953 Tranekær

Sagsnummer 523-4551
Boligtype Fritidsbolig
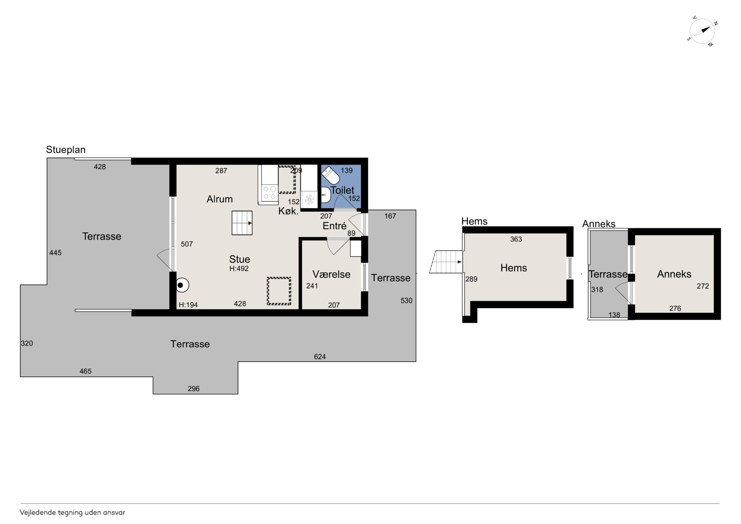
Boligareal 45 m2
Grundareal 1503 m2
Bygget/ombygget 1973
Antal rum 3
Etager 2
   
   

Kontantpris kr. 995.000

Udbetaling kr. 50.000
Brutto kr. 5.363
Netto kr. 4.286
Ejerudgift kr. 1.606
Brutto og Netto er eksklusiv ejerudgifter

Kom til fremvisning Hent salgsopstilling

Kontakt

Søren Holst
Mail: holst@mailreal.dk
Tlf.: 2616 9415

RealMæglerne Sydfyn
R523 Vestergade 30A 5700 Svendborg Mail: sydfyn@mailreal.dk
Tlf.: 6363 3636


Engvej 30 – Charmerende fritidshus på Nordlangeland tæt ved strand og hyggelige Lohals

På Engvej 30 finder du et skønt fritidshus i et roligt område på Nordlangeland – blot få minutters gang fra stranden og kun 5 minutters kørsel fra den stemningsfulde havneby Lohals, hvor både indkøbsmuligheder og hyggelige restauranter venter.

Huset er et klassisk A-hus på 45 m2, hvor pladsen er

.. Læs mere...

Er der økonomi til boligen?

Kontantpris kr. 995.000
Udbetaling kr. 50.000
Ejerudgift kr. 1.606

Kontakt

Søren Holst
Mail: holst@mailreal.dk
Tlf.: 2616 9415

RealMæglerne Sydfyn
Vestergade 30A
5700 Svendborg
Mail: sydfyn@mailreal.dk
Tlf.: 6363 3636

Skriv din pris

Giv et uforpligtende bud. Dit bud er ikke bindende for dig, ligesom sælger ikke er forpligtet til at acceptere dit bud.

* Der samles ingen personlige oplysninger uden dit udtrykkelige samtykke. Ved at klikke på denne checkboks giver du dit samtykke til, at dine data samles og behandles af RealMæglerne A/S for at kunne kontakte dig. Du kan til enhver tid tilbagekalde dit samtykke. For at gøre dette skal du blot sende en meddelelse til info@realmaeglerne.dk. Læs mere på privatlivspolitikkerne.

Bestil Salgsopstilling

* Der samles ingen personlige oplysninger uden dit udtrykkelige samtykke. Ved at klikke på denne checkboks giver du dit samtykke til, at dine data samles og behandles af RealMæglerne A/S for at kunne kontakte dig. Du kan til enhver tid tilbagekalde dit samtykke. For at gøre dette skal du blot sende en meddelelse til info@realmaeglerne.dk. Læs mere på privatlivspolitikkerne.

Bestil fremvisning

Ved at indsende formularen, giver du dit samtykke til, at dine data samles og behandles af RealMæglerne A/S for at kunne kontakte dig. Du kan til enhver tid tilbagekalde dit samtykke. For at gøre dette skal du blot sende en meddelelse til info@realmaeglerne.dk. Læs mere på privatlivspolitikkerne.
Fandt du ikke det du søgte? - Opret dig som bruger og få mere ud af din boligsøgning
Dit RealMæglerne

Log ind på RealMæglernes Boligagent

Med Mit RealMæglerne er det nemt at følge boligmarkedet. Leder du efter nyt, kan du gemme dine favorit boliger og målrette din søgning ned til mindste detalje. Skal du sælge, kan du løbende følge interessen for din bolig og meget mere.


Kontakt Mægler

Din bolig

* Der samles ingen personlige oplysninger uden dit udtrykkelige samtykke. Ved at klikke på denne checkboks giver du dit samtykke til, at dine data samles og behandles af RealMæglerne A/S for at kunne kontakte dig. Du kan til enhver tid tilbagekalde dit samtykke. For at gøre dette skal du blot sende en meddelelse til info@realmaeglerne.dk. Læs mere på privatlivspolitikkerne.

Tilmeld til åbent hus

Adresse:
Dato:
Tidspunkt:

Kontakt Mægler

* Der samles ingen personlige oplysninger uden dit udtrykkelige samtykke. Ved at klikke på denne checkboks giver du dit samtykke til, at dine data samles og behandles af RealMæglerne A/S for at kunne kontakte dig. Du kan til enhver tid tilbagekalde dit samtykke. For at gøre dette skal du blot sende en meddelelse til info@realmaeglerne.dk. Læs mere på privatlivspolitikkerne.

Bestil gratis salgsvurdering

Din bolig

Send salgsvurdering til:

Vælg mægler

* Der samles ingen personlige oplysninger uden dit udtrykkelige samtykke. Ved at klikke på denne checkboks giver du dit samtykke til, at dine data samles og behandles af RealMæglerne A/S for at kunne kontakte dig. Du kan til enhver tid tilbagekalde dit samtykke. For at gøre dette skal du blot sende en meddelelse til info@realmaeglerne.dk. Læs mere på privatlivspolitikkerne.

Bestil gratis salgsvurdering

Din bolig

Send salgsvurdering til:

Vælg mægler

* Der samles ingen personlige oplysninger uden dit udtrykkelige samtykke. Ved at klikke på denne checkboks giver du dit samtykke til, at dine data samles og behandles af RealMæglerne A/S for at kunne kontakte dig. Du kan til enhver tid tilbagekalde dit samtykke. For at gøre dette skal du blot sende en meddelelse til info@realmaeglerne.dk. Læs mere på privatlivspolitikkerne.