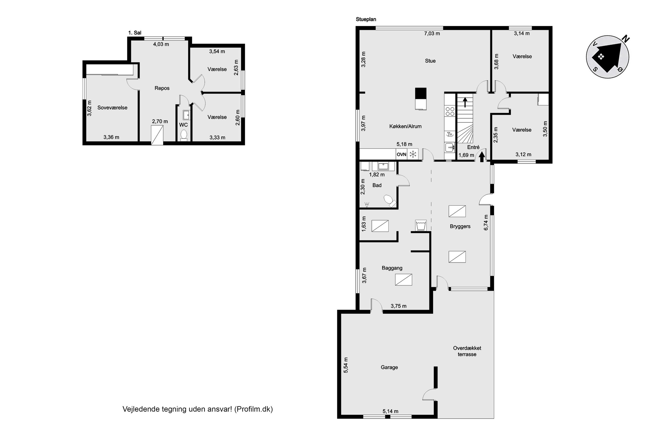
Villaen er opført med et boligareal på 180 m2 fordelt på to plan, hvilket giver god plads til både familieliv og fleksibel indretning. En del af stueplanets rum – herunder entre/bryggers, badeværelse og baggang – er under renovering, og denne proces er påbegyndt, så de tungeste konstruktioner er udført. Den kommende ejer overtager selv færdiggørelsen og har dermed mulighed for at vælge inventar, loftsbeklædning m.v. efter egen smag og behov.
Ejendommen opvarmes via en nyere luft til vand varmepumpe, hvilket sikrer en moderne og energieffektiv varmeløsning. Derudover er huset udstyret med solceller til elproduktion, hvilket kan bidrage til lavere driftsomkostninger og et grønnere energiforbrug.
Indretningen byder på et hyggeligt og stort køkken/alrum i åben forbindelse med stuen, som giver et rummeligt og lyst fællesareal. I stueplan findes der endvidere et soveværelse, et værelse samt en gang med trappe til 1. sal. På 1. sal er der et stort repos, et stort værelse, to mindre værelser samt et toilet, hvilket gør etagen velegnet til børneværelser, kontor eller gæsteplads.
Til ejendommen hører en stor garage samt udhus, som begge kan bruges til opbevaring, værksted eller hobbyformål. Haven er dejlig og privat, med udsigt til åbne marker – en karakteristisk og rolig placering for den der ønsker nærhed til naturen.
Om Vonge
Vonge er en mindre landsby i Vejle Kommune med omkring 550 indbyggere. Byen ligger i landlige omgivelser mellem Kollemorten, Tørring og med cirka 20 km. til Vejle.
Som lokalsamfund er Vonge kendt for et aktivt og tæt sammenhold. Der er en folkeskole (Øster Nykirke Skole) med tilhørende SFO, fritidsklubber, idrætsfaciliteter såsom Vonge Kollemorten Hallen samt et varieret foreningsliv, hvor lokalt engagement og fælles arrangementer spiller en stor rolle.
Byen har også dagpleje og børnepasningstilbud i lokalområdet samt en lokal købmand, som bidrager til dagligdagens bekvemmeligheder.
Vonge ligger omgivet af natur, med adgang til cykelruter, grønne områder og daglig kontakt med landskabets åbne marker, hvilket sammen med lokal service, skole og foreningsliv gør byen attraktiv for især børnefamilier og dem, som foretrækker landlig ro med kort afstand til større byer.