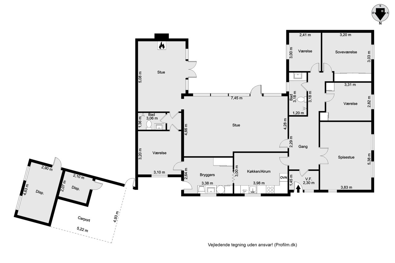
Beliggende i det rolige og eftertragtede “trækvarter” i Give – centralt mellem midtbyen og Firkløver Skolen – finder du denne velholdte villa på Bøgevej 2A. Huset, oprindeligt opført i 1965, fremstår i dag som et sammenhængende og rummeligt étplanshus på 190 m2 efter senere tilbygninger og moderniseringer.
Villaen byder velkommen via en entré og fordelingsgang, der giver adgang til husets mange rum: Fra bryggers er der adgang til spisekøkken og til et kontor/værelse. Boligen rummer desuden to badeværelser – et i hver ende af huset – hvilket giver god fleksibilitet og komfort for en større familie. Den sociale del af hjemmet består af en stue med gulvvarme og brændeovn samt en dagligstue og en elegant spisestue, hvor Junckers massive trægulve tilfører varme og karakter. Foruden soveværelse er der to gode værelser, som kan fungere som børneværelser eller gæste-/arbejdsværelser alt efter behov.
Taget blev skiftet i 1998, og huset er efterisoleret — et vigtigt element for både komfort og energieffektivitet. Der er installeret solceller og opvarmningen sker via fjernvarme, hvilket samlet set vidner om ejendommens vedligeholdelse og fokus på både drift og fremtidssikring. Vinduerne er af teak- og mahogni, hvilket afspejler en klassisk og solid byggestil, hvor materialer af høj kvalitet stadig bærer huset flot.
På grunden findes en stor carport med tilhørende redskabsrum og udhus — ideelt til biler, hobby eller haveudstyr. Endvidere ligger huset med kort afstand til både skole, børnehave og idrætsfaciliteter, hvilket gør det særligt velegnet for familier med børn.
Alt i alt tilbyder Bøgevej 2A et rummeligt familiehus, som trods sin alder fremstår særdeles velholdt. Her får man en bolig med gode, klassiske kvaliteter og solid bygningshistorie — og stadig med mulighed for individuelle moderniseringer og personlig indretning.