Se mere på Parkvej Give
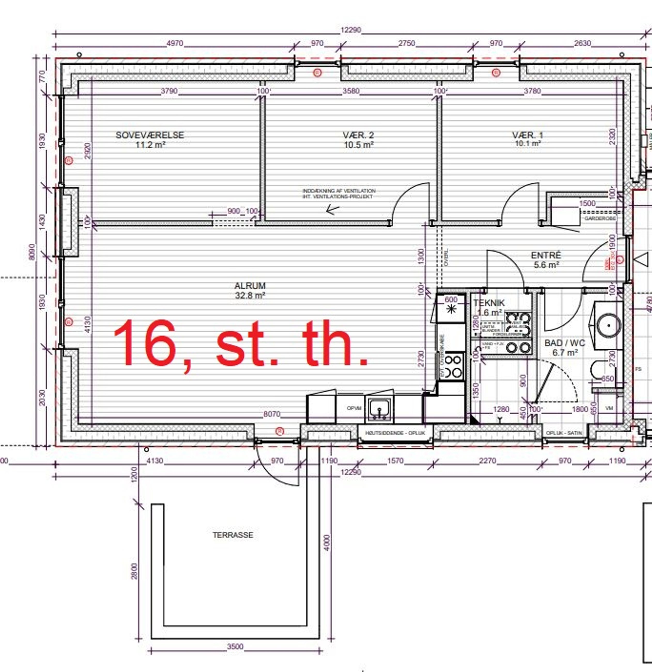
På Parkvej i Give opføres i øjeblikket et nyt og indbydende lejlighedsprojekt, som kommer til at rumme i alt 12 lejligheder fordelt på to bygninger. Hver bygning indeholder seks lejligheder – tre i stueplan og tre på første sal – og ligger i et roligt område med stisystemer og grønne omgivelser, blot en kort gåtur fra Give bymidte. Lejlighederne varierer i størrelse fra ca. 95 til 108 kvadratmeter og udbydes som både tre- og fireværelses boliger, hvilket gør dem velegnede til både par, børnefamilier og andre, der ønsker en moderne bolig med god plads og funktionel indretning, og hvor der er optimale lysforhold fra tre verdenshjørner. Altaner er ca. 8 m2 og terrasser er ca. 15 m2.
Byggeriet udføres i kvalitetsmaterialer med et tydeligt fokus på både æstetik og funktionalitet. De grønne tage med sedum samt de rød/brune ståltage understreger det bæredygtige fokus, mens træbeklædte facader og troldtektlofter bidrager til et naturligt og harmonisk udtryk – både ude og inde. Der etableres parkeringspladser, som passer godt ind i området, og hver lejlighed får tilknyttet sit eget depotrum eller skur på ca. 3,5 m2. Begge bygninger forsynes med elevator/lift, hvilket giver nem adgang til lejlighederne på første sal og gør projektet tilgængeligt for alle.
Herudover kan bl.a. nævnes, at der er gulvvarme i alle rum, dørtelefon, fjernvarme og ventilationsanlæg.
Udvendig vedligeholdelse, herunder også vinduesvask (dog ikke ved altaner/terrasser), varetages af udlejer, og de grønne fællesarealer passes ligeledes af udlejer. Snerydning foretages af udlejer på p-plads og gangstier. Affaldshåndteringen sker via en nedgravet miljøstation, som både er praktisk og diskret integreret i området.
Der etableres ladestandere på den fælles p-plads, der kan benyttes af områdets beboere.
Der kan søges om tilladelse til at medbringe en hund/kat, dog skal dette godkendes af udlejer i hvert enkelt tilfælde.
Projektet på Parkvej henvender sig til dem, der ønsker moderne og vedligeholdelseslette boliger i naturskønne omgivelser, uden at give afkald på nærheden til byens faciliteter.
Materialebeskrivelse
- Inventar køkken og bad: TVIS.
- Hvidevarer: GRAM
- Gulve: Mærke: Ter Hürne, Catania Oak (LVT vinyl gulv)
- Klinker i bad: 60x60. Mærke: Stem in Taupe
- Lofter: Troldtekt, hvid
- Gulvvarme i alle rum
- Eget skur til hver lejlighed ca. 3,5 m2
- Dørtelefon
- Eget ventilationsanlæg
- Vand og fjernvarme er på lejlighedsniveau. Altså direkte afregning til værket
- Tag: Bl.a. Sedum på flade tage.
- Facader: Sten, stålplader og træ.
- Internet: Fibernet
Lejevilkår
Depositum: 3 mdr. husleje. Der betales 1/3 ved underskrift af lejekontrakt, og 2/3 betales 01.04.2026.
Arealer
TYPE A: 3-værelses lejligheder på 95,8 m2
TYPE B: 3-værelses lejligheder på 96,3 m2
TYPE C: 3 el. 4-værelses lejligheder på 108,7 m2
Det bemærkes
- tegninger ej målfaste
- der er tale om illustrationer af projektet
- arealer er anslået
- alle arealer er opgjort som bruttoarealer
- ret til ændringer forbeholdes