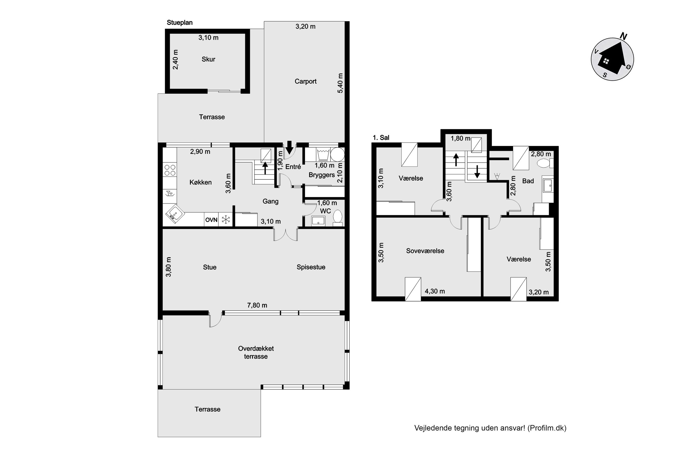
Velkommen til dette indbydende enderækkehus beliggende i det eftertragtede Toftekvarteret i Lind. Denne bolig fra 1977 byder på et boligareal på 126 kvadratmeter, der er blevet nænsomt moderniseret for at imødekomme nutidens krav til komfort og stil. Når du træder ind gennem hoveddøren, mødes du af et praktisk bryggers, der giver adgang til en fordelingsgang med trappe til første sal.
Stueetagen præsenterer et rummeligt spisekøkken, hvor madlavning og samvær går hånd i hånd. Videre ind til den lyse opholdsstue, som har plads til både spisebord og sofaafdeling. Stuen åbner op mod en overdækket terrasse, hvor du kan nyde de lune sommeraftener eller betragte børnene lege i den sydvendte have.
På første sal finder du en repos, der leder dig videre til et stort soveværelse samt to yderligere værelser – perfekt for børnefamilien eller dem, der ønsker ekstra kontor- eller hobbyrum. Badeværelset på denne etage er blevet moderniseret med sans for detaljer og funktionalitet.
Udenfor venter nemt anlagte udearealer med flisebelægning samt en carport og udhus til opbevaring af haveredskaber eller cykler. Den overdækkede terrasse fungerer som en naturlig forlængelse af stuen og giver mulighed for at nyde udelivet året rundt.
Beliggenheden er ideel med kort afstand til grønne arealer, Lind Skole samt Alpi-hallerne. Desuden er motorvejen let tilgængelig, hvilket gør pendling både hurtigt og bekvemt.
R479
Nygade 8A
7400 Herning