Søg bolig

0 Boliger til salg

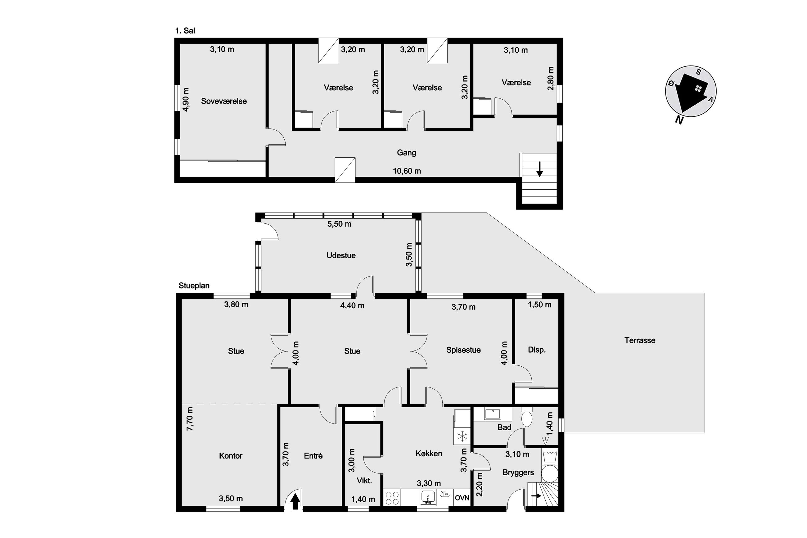
Kirkesvinget 26, 7400 Herning

Sagsnummer 479-2988
Boligtype Landejendom
Boligareal 198 m2
Grundareal 71027 m2
Garage/carport 24/25 m2
Bygget/ombygget 1924
Antal rum 8
Etager 2
   
Energimærke
   

Kontantpris kr. 2.800.000

Udbetaling kr. 140.000
Brutto kr. 14.773
Netto kr. 11.966
Ejerudgift kr. 2.365
Brutto og Netto er eksklusiv ejerudgifter

Kom til fremvisning Hent salgsopstilling

Kontakt

Ib Schiermer
Mail: isc@mailreal.dk
Tlf.: 6140 4423

RealMæglerne Herning
R479 Nygade 8C 7400 Herning Mail: 7400@mailreal.dk
Tlf.: 7060 5607


Charmerende landejendom med rummeligt stuehus på 198 m2, gode udbygninger, 7,1 ha jord – og en fantastisk jagt

Velkommen til denne enestående landejendom, der forener historie, komfort og naturskønne omgivelser på smukkeste vis. Ejendommen er opført i 1924 og fremstår med klassisk charme kombineret med moderne forbedringer – blandt andet nyere tag på de fleste bygninger.

Det smukke stuehus rummer hele 198

.. Læs mere...

Er der økonomi til boligen?

Kontantpris kr. 2.800.000
Udbetaling kr. 140.000
Ejerudgift kr. 2.365

Kontakt

Ib Schiermer
Mail: isc@mailreal.dk
Tlf.: 6140 4423

RealMæglerne Herning
Nygade 8C
7400 Herning
Mail: 7400@mailreal.dk
Tlf.: 7060 5607

Skriv din pris

Giv et uforpligtende bud. Dit bud er ikke bindende for dig, ligesom sælger ikke er forpligtet til at acceptere dit bud.

* Der samles ingen personlige oplysninger uden dit udtrykkelige samtykke. Ved at klikke på denne checkboks giver du dit samtykke til, at dine data samles og behandles af RealMæglerne A/S for at kunne kontakte dig. Du kan til enhver tid tilbagekalde dit samtykke. For at gøre dette skal du blot sende en meddelelse til info@realmaeglerne.dk. Læs mere på privatlivspolitikkerne.

Bestil Salgsopstilling

* Der samles ingen personlige oplysninger uden dit udtrykkelige samtykke. Ved at klikke på denne checkboks giver du dit samtykke til, at dine data samles og behandles af RealMæglerne A/S for at kunne kontakte dig. Du kan til enhver tid tilbagekalde dit samtykke. For at gøre dette skal du blot sende en meddelelse til info@realmaeglerne.dk. Læs mere på privatlivspolitikkerne.

Bestil fremvisning

Ved at indsende formularen, giver du dit samtykke til, at dine data samles og behandles af RealMæglerne A/S for at kunne kontakte dig. Du kan til enhver tid tilbagekalde dit samtykke. For at gøre dette skal du blot sende en meddelelse til info@realmaeglerne.dk. Læs mere på privatlivspolitikkerne.
Fandt du ikke det du søgte? - Opret dig som bruger og få mere ud af din boligsøgning
Dit RealMæglerne

Log ind på RealMæglernes Boligagent

Med Mit RealMæglerne er det nemt at følge boligmarkedet. Leder du efter nyt, kan du gemme dine favorit boliger og målrette din søgning ned til mindste detalje. Skal du sælge, kan du løbende følge interessen for din bolig og meget mere.


Kontakt Mægler

Din bolig

* Der samles ingen personlige oplysninger uden dit udtrykkelige samtykke. Ved at klikke på denne checkboks giver du dit samtykke til, at dine data samles og behandles af RealMæglerne A/S for at kunne kontakte dig. Du kan til enhver tid tilbagekalde dit samtykke. For at gøre dette skal du blot sende en meddelelse til info@realmaeglerne.dk. Læs mere på privatlivspolitikkerne.

Tilmeld til åbent hus

Adresse:
Dato:
Tidspunkt:

Kontakt Mægler

* Der samles ingen personlige oplysninger uden dit udtrykkelige samtykke. Ved at klikke på denne checkboks giver du dit samtykke til, at dine data samles og behandles af RealMæglerne A/S for at kunne kontakte dig. Du kan til enhver tid tilbagekalde dit samtykke. For at gøre dette skal du blot sende en meddelelse til info@realmaeglerne.dk. Læs mere på privatlivspolitikkerne.

Bestil gratis salgsvurdering

Din bolig

Send salgsvurdering til:

Vælg mægler

* Der samles ingen personlige oplysninger uden dit udtrykkelige samtykke. Ved at klikke på denne checkboks giver du dit samtykke til, at dine data samles og behandles af RealMæglerne A/S for at kunne kontakte dig. Du kan til enhver tid tilbagekalde dit samtykke. For at gøre dette skal du blot sende en meddelelse til info@realmaeglerne.dk. Læs mere på privatlivspolitikkerne.

Bestil gratis salgsvurdering

Din bolig

Send salgsvurdering til:

Vælg mægler

* Der samles ingen personlige oplysninger uden dit udtrykkelige samtykke. Ved at klikke på denne checkboks giver du dit samtykke til, at dine data samles og behandles af RealMæglerne A/S for at kunne kontakte dig. Du kan til enhver tid tilbagekalde dit samtykke. For at gøre dette skal du blot sende en meddelelse til info@realmaeglerne.dk. Læs mere på privatlivspolitikkerne.