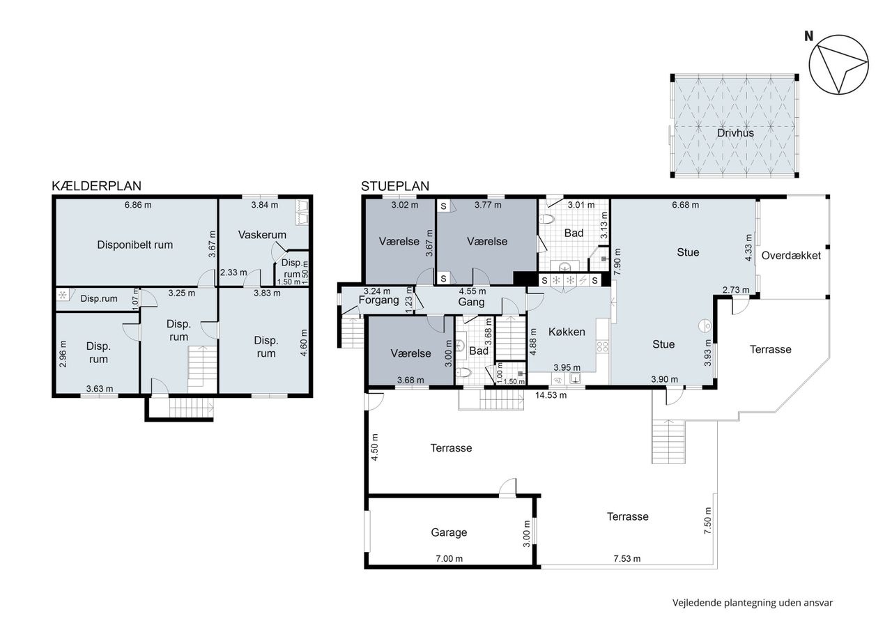
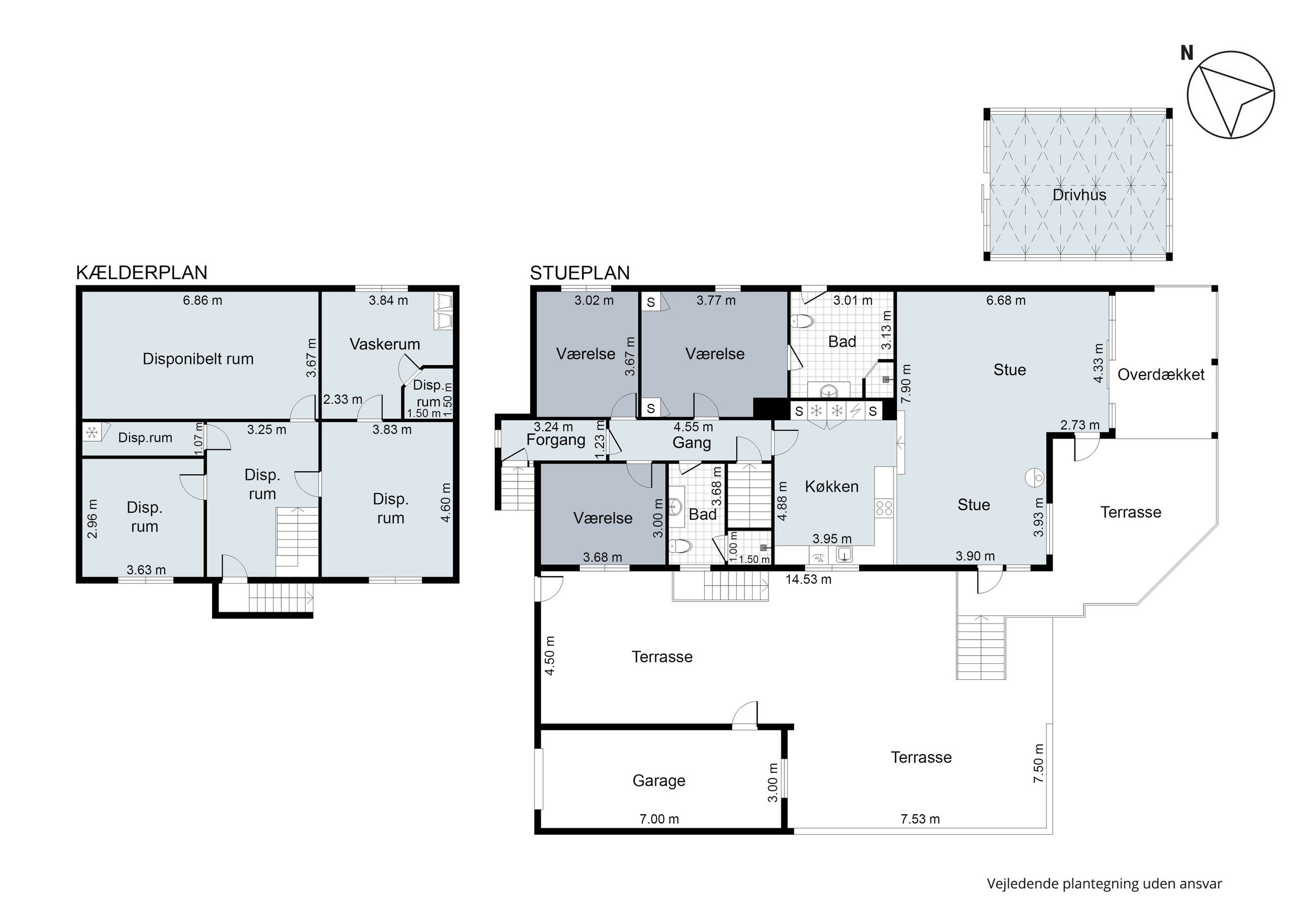
Velkommen til Violvej 4 – en charmerende og indflytningsklar villa beliggende i et roligt og familievenligt kvarter i Løgstør. Her får du 147 m2 velfordelte boligkvadratmeter, en god kælder samt en skøn grund på 811 m2. Et oplagt valg for både børnefamilien, parret eller dig, der ønsker god plads og en bolig, hvor alt løbende er renoveret, taget er bla. kun et par år gammelt.
Boligen byder på en lys og indbydende atmosfære med et flot åbent opholdsrum, hvor stue og køkken/alrum er samlet i ét – perfekt til både hverdagslivet og hyggelige stunder med gæster. De store vinduespartier giver et fantastisk lysindfald, og fra stuen er der direkte adgang til en rummelig træterrasse, som indbyder til grill, solbadning og afslapning i de lune måneder.
Køkkenet fremstår moderne og funktionelt med god skabsplads og en naturlig forbindelse til både spiseplads og stue. Herudover rummer boligen tre gode værelser, herunder et lyst forældresoveværelse, to rummelige børneværelser samt yderligere et værelse/kontor. Badeværelset er pænt og tidløst med lyse materialer.
I kælderen finder du ekstra plads til opbevaring, hobby eller værksted – og derudover er der et praktisk bryggers med god arbejdsplads, vaskefaciliteter og ekstra opbevaring.
Udendørs får du en dejlig ugeneret have med gode kroge til leg, afslapning og udeliv. Den store terrasse binder ude og inde smukt sammen og gør huset oplagt til dig, der sætter pris på en nem og brugervenlig have.