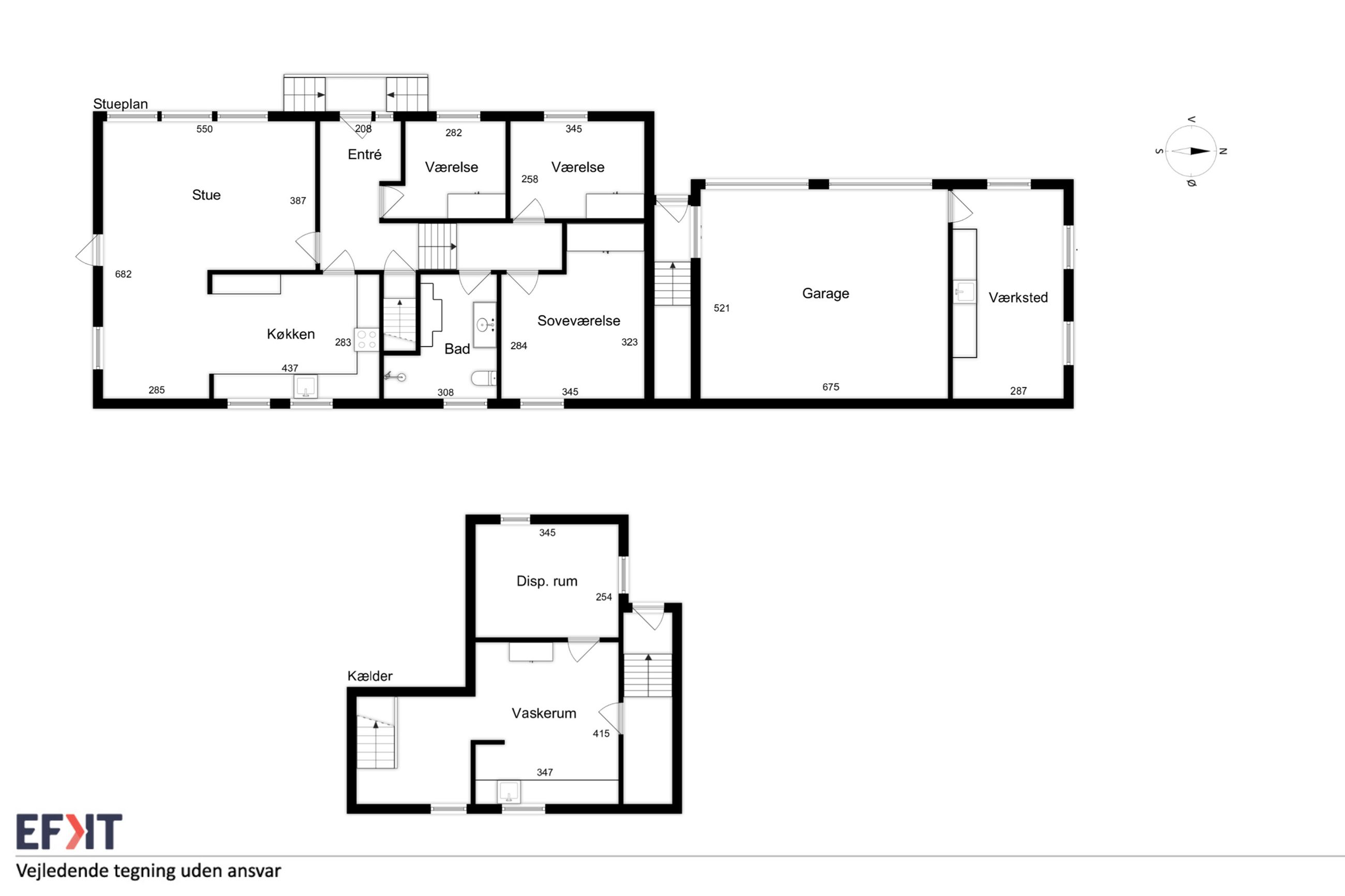
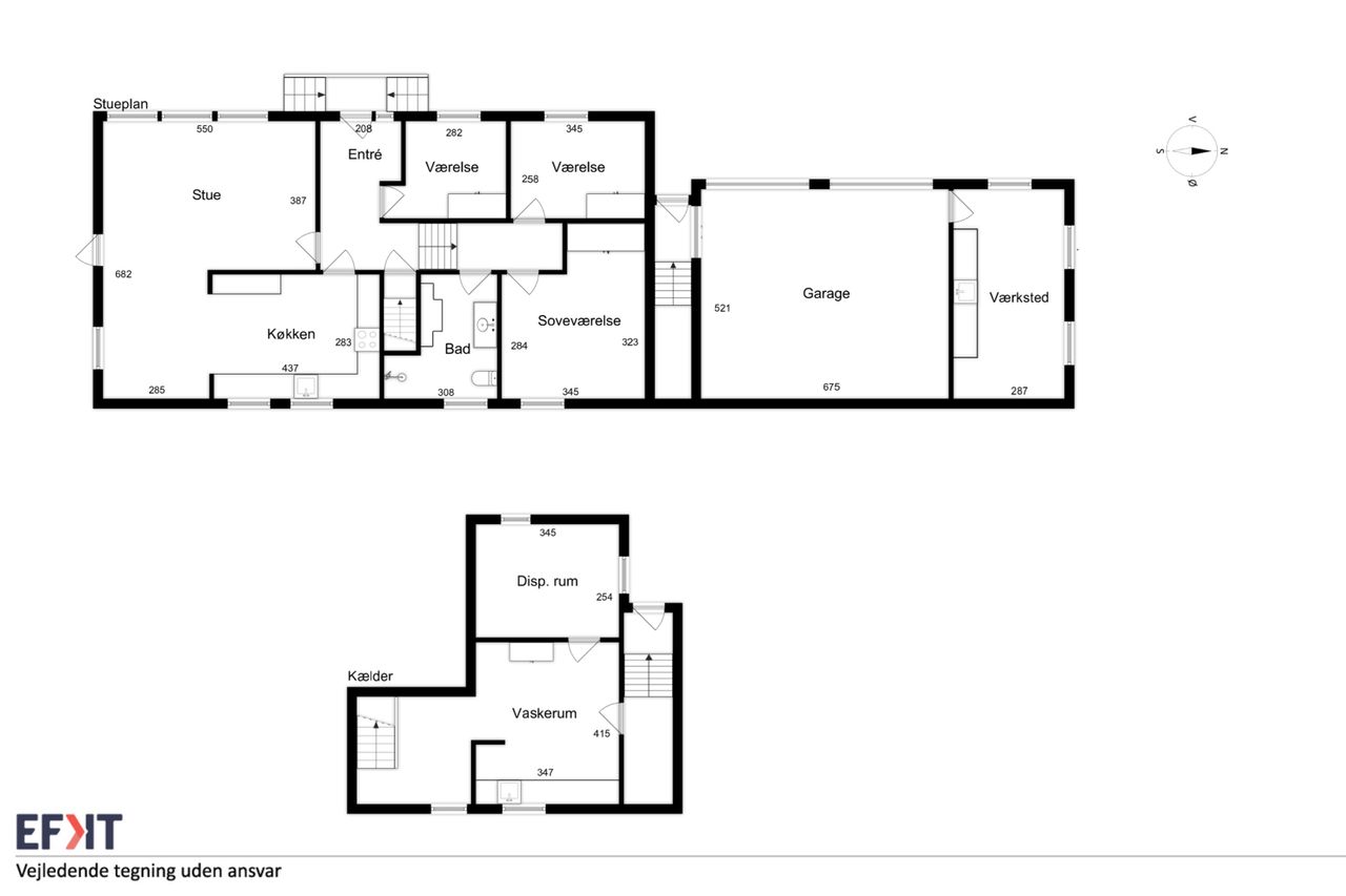
1 PLANS VILLA MED 40 M2 KÆLDER OG 65 M2 FLOT GARAGE/VÆRKSTED - TÆT VED ALLE BYENS FACILITETER Centralt i Kalundborg ligger denne velholdte 1 plans villa med kort afstand til både indkøb, arbejdspladser m.m. Der er gåafstand til toget Kalundborg Øst til København. Villaen er opført i røde mursten og med decratag, og er sammenbygget med en stor dobbeltgarage. Garage er beklædt med komposit "træ", som er vedligeholdelsesfrit. I haven ligger nyere udhus opført i samme stil. Selve boligen er indrettet i forskudte plan med 4-5 trin mellem stueafdeling og soveafdeling. I stueplan er der stor lys opholdsstue med udgang til sydvendt terrasse med el-markise, delvist åbnet køkken med hvide, højglanslåger og entre med garderobeplads. I soveafdelingen er der stort soveværelse med skabe, 2 værelser - begge med skabe og stort badeværelse med lyse fliser, gulvvarme og bruseniche. Der er nedgang til nederste plan/kælderen via garagen, hvor der er et stort vaskerum med bord og vask, trapperum og et ekstra "værelse"/kontor. Og med direkte adgang fra boligen ligger enhver hobby m/ks store ønske, nemlig den 65 m2 store garage med 2 elporte og indbygget værksted med varmepumpe. Boligen opvarmes med fjernvarme, hvor varmenheden er udskiftet i 2023. Der er opsat afkalker til vandet, som letter al rengøring ift. kalkaflejringer. Haven ligger ugeneret bag ejendommen og er anlagt med græs, flot hegn, nyere udhus, som er isoleret og med strøm. Bagerst i haven er der egen låge med udgang til grønt areal. Der er mange flisebelægninger i haven og ved boligen, som gør det nemt at færdes overalt på ejendommen. BOLIG MED DET HELE - VELEGNET TIL FAMILIE MED BØRN, MANGE AKTIVITETER ELLER DEM SOM BARE VIL BO CENTRALT
Prøv vores klimaberegner og find de mest rentable energiforbedringer til netop din bolig. Sammensæt dine egne løsninger og se straks den samlede gevinst for både din økonomi og for klimaet.
Forbedringer til
Holbækvej 103
Vis
Hvad er din bolig værd lige nu?
Få et lynhurtigt prisestimat på din bolig. Indtast din adresse og svar på 3 korte spørgsmål om boligens stand – så viser vi dig, hvad den cirka kan handles for i dag
Hvor ligger din bolig?
Vi kan desværre ikke beregne en pris på den valgte adresse. Vælg venligst en anden adresse.
Bemærk: Beregneren gælder for almindelige ejerboliger og sommerhuse. Har du en andelsbolig, ideel anpart, landbrug, nybyg eller ejendom med erhverv? Så giv din lokale mægler et kald for en præcis vurdering.
Hvor god er...
din bolig's beliggenhed?
Hvor god er...
din bolig's indvendige stand?
Hvor god er...
din bolig's udvendige stand?
Hvilken type bolig bor du i?
Vil du have den korrekte pris?
Kontakt os allerede i dag for en gratis og uforpligtende vurdering. Her får du den rigtige pris.
* Der samles ingen personlige oplysninger uden dit udtrykkelige samtykke.
Ved at klikke på denne checkboks giver du dit samtykke til, at dine data samles og behandles af RealMæglerne A/S for at kunne kontakte dig.
Du kan til enhver tid tilbagekalde dit samtykke. For at gøre dette skal du blot sende en meddelelse til info@realmaeglerne.dk.
Læs mere på privatlivspolitikkerne.
Glemt adgangskode
Tilmeldt via. mægler
Kontakt Mægler
Tak for din interesse
Mægleren vil kontakte dig hurtigst muligt
Tak for din tilmelding til åbent hus!
Adresse:
Dato:
Tidspunkt:
Vi glæder os til at vise dig boligen. Har du spørgsmål inden vi ses, kan du kontakte fra RealMæglerne
Vi glæder os til at vise dig boligen. Har du spørgsmål inden vi ses, er du velkommen til at kontakte os