Søg bolig

0 Boliger til salg

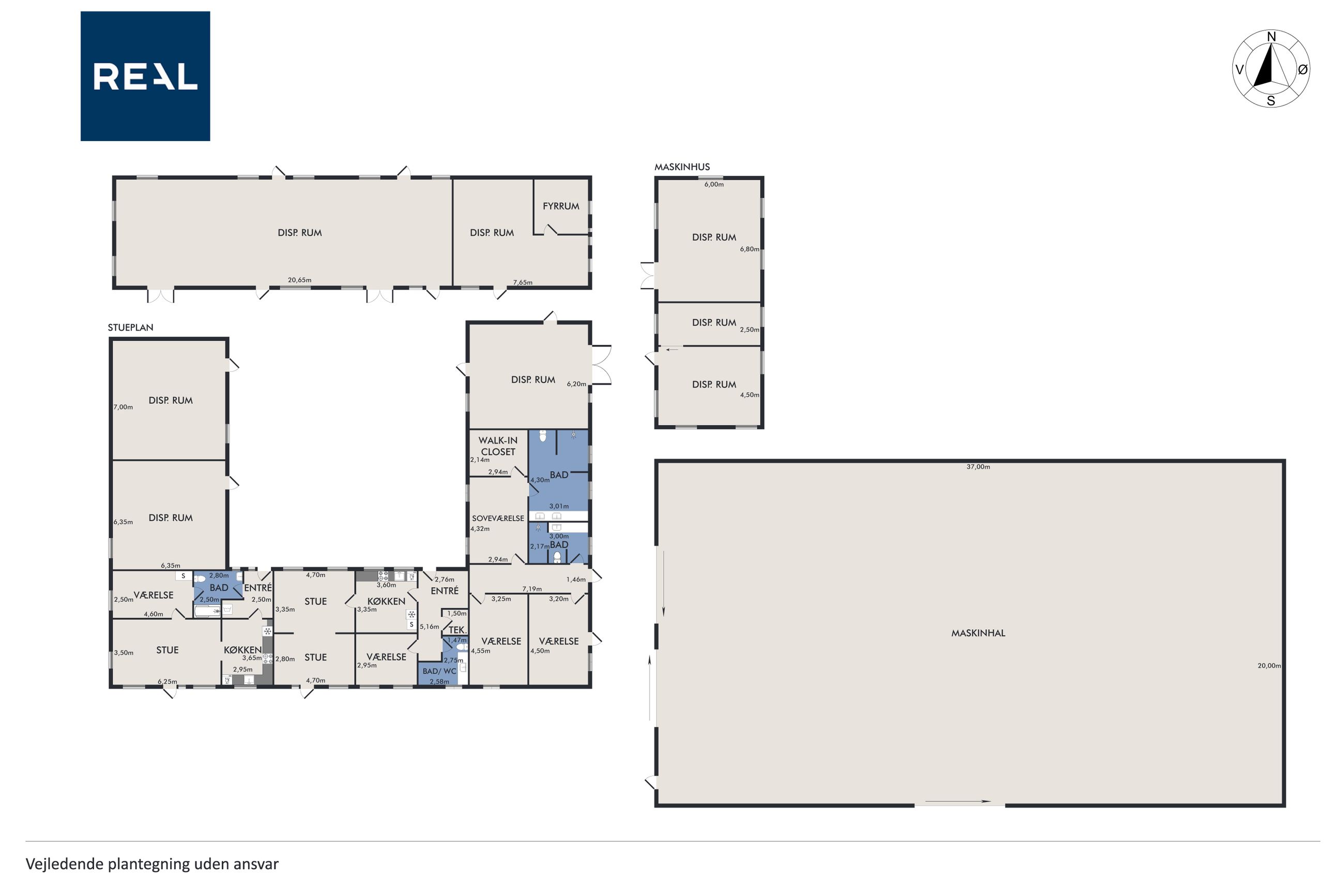
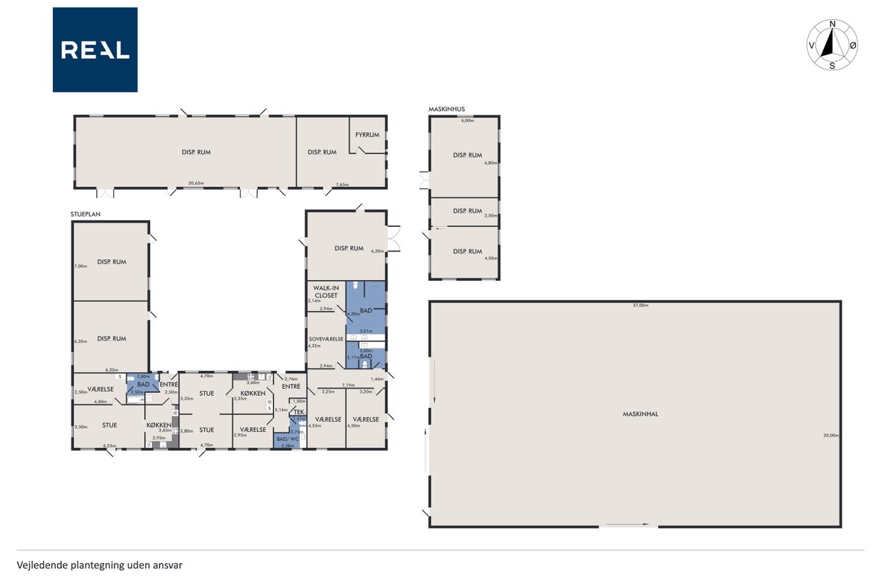
Udsholt Byvej 6A, 3230 Græsted

Sagsnummer 3593306
Boligtype Landejendom
Boligareal 250 m2
Grundareal 82539 m2
Bygget/ombygget 1864 / 2023
Antal rum 8
Etager 1
   
Energimærke
   

Kontantpris kr. 9.995.000

Udbetaling kr. 500.000
Brutto kr. 52.629
Netto kr. 42.690
Ejerudgift kr. 4.653
Brutto og Netto er eksklusiv ejerudgifter

Kom til fremvisning Hent salgsopstilling

Kontakt

Jesper Bonde
Mail: jesper@mailreal.dk
Tlf.: 4830 0585

RealMæglerne Gribskov ApS
R359 Vesterbrogade 17B 3250 Gilleleje Mail: 3250@mailreal.dk
Tlf.: 4830 0585


Fantastisk 4-længet landejendom!

Kom ud og besøg denne skønne ejendom med rigtig god plads til den store familie eller måske 2 generationer?

Beliggende i lille landsbymiljø med gadekær. Kort afstand til stranden, indkøb, skole og sportsmuligheder. 

Ejendommen ligger på en 8,25 hektar stor grund, hvor den ene hektar er en

.. Læs mere...

Er der økonomi til boligen?

Kontantpris kr. 9.995.000
Udbetaling kr. 500.000
Ejerudgift kr. 4.653

Kontakt

Jesper Bonde
Mail: jesper@mailreal.dk
Tlf.: 4830 0585

RealMæglerne Gribskov ApS
Vesterbrogade 17B
3250 Gilleleje
Mail: 3250@mailreal.dk
Tlf.: 4830 0585

Skriv din pris

Giv et uforpligtende bud. Dit bud er ikke bindende for dig, ligesom sælger ikke er forpligtet til at acceptere dit bud.

* Der samles ingen personlige oplysninger uden dit udtrykkelige samtykke. Ved at klikke på denne checkboks giver du dit samtykke til, at dine data samles og behandles af RealMæglerne A/S for at kunne kontakte dig. Du kan til enhver tid tilbagekalde dit samtykke. For at gøre dette skal du blot sende en meddelelse til info@realmaeglerne.dk. Læs mere på privatlivspolitikkerne.

Bestil Salgsopstilling

* Der samles ingen personlige oplysninger uden dit udtrykkelige samtykke. Ved at klikke på denne checkboks giver du dit samtykke til, at dine data samles og behandles af RealMæglerne A/S for at kunne kontakte dig. Du kan til enhver tid tilbagekalde dit samtykke. For at gøre dette skal du blot sende en meddelelse til info@realmaeglerne.dk. Læs mere på privatlivspolitikkerne.

Bestil fremvisning

Ved at indsende formularen, giver du dit samtykke til, at dine data samles og behandles af RealMæglerne A/S for at kunne kontakte dig. Du kan til enhver tid tilbagekalde dit samtykke. For at gøre dette skal du blot sende en meddelelse til info@realmaeglerne.dk. Læs mere på privatlivspolitikkerne.
Fandt du ikke det du søgte? - Opret dig som bruger og få mere ud af din boligsøgning
Dit RealMæglerne

Log ind på RealMæglernes Boligagent

Med Mit RealMæglerne er det nemt at følge boligmarkedet. Leder du efter nyt, kan du gemme dine favorit boliger og målrette din søgning ned til mindste detalje. Skal du sælge, kan du løbende følge interessen for din bolig og meget mere.


Kontakt Mægler

Din bolig

* Der samles ingen personlige oplysninger uden dit udtrykkelige samtykke. Ved at klikke på denne checkboks giver du dit samtykke til, at dine data samles og behandles af RealMæglerne A/S for at kunne kontakte dig. Du kan til enhver tid tilbagekalde dit samtykke. For at gøre dette skal du blot sende en meddelelse til info@realmaeglerne.dk. Læs mere på privatlivspolitikkerne.

Tilmeld til åbent hus

Adresse:
Dato:
Tidspunkt:

Kontakt Mægler

* Der samles ingen personlige oplysninger uden dit udtrykkelige samtykke. Ved at klikke på denne checkboks giver du dit samtykke til, at dine data samles og behandles af RealMæglerne A/S for at kunne kontakte dig. Du kan til enhver tid tilbagekalde dit samtykke. For at gøre dette skal du blot sende en meddelelse til info@realmaeglerne.dk. Læs mere på privatlivspolitikkerne.

Bestil gratis salgsvurdering

Din bolig

Send salgsvurdering til:

Vælg mægler

* Der samles ingen personlige oplysninger uden dit udtrykkelige samtykke. Ved at klikke på denne checkboks giver du dit samtykke til, at dine data samles og behandles af RealMæglerne A/S for at kunne kontakte dig. Du kan til enhver tid tilbagekalde dit samtykke. For at gøre dette skal du blot sende en meddelelse til info@realmaeglerne.dk. Læs mere på privatlivspolitikkerne.

Bestil gratis salgsvurdering

Din bolig

Send salgsvurdering til:

Vælg mægler

* Der samles ingen personlige oplysninger uden dit udtrykkelige samtykke. Ved at klikke på denne checkboks giver du dit samtykke til, at dine data samles og behandles af RealMæglerne A/S for at kunne kontakte dig. Du kan til enhver tid tilbagekalde dit samtykke. For at gøre dette skal du blot sende en meddelelse til info@realmaeglerne.dk. Læs mere på privatlivspolitikkerne.