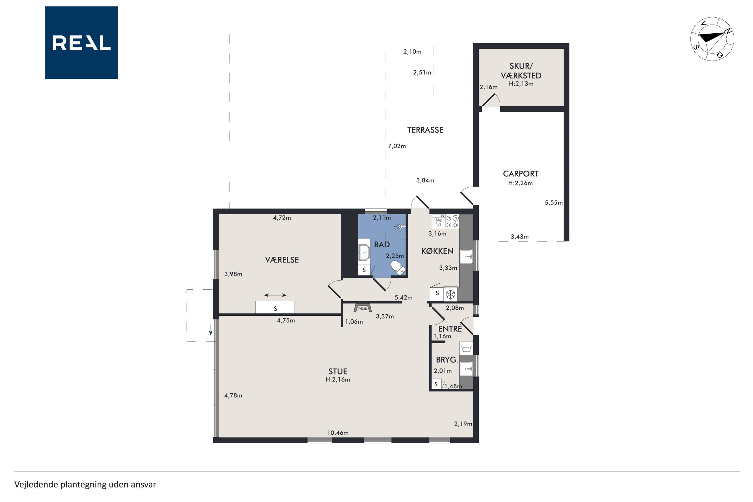
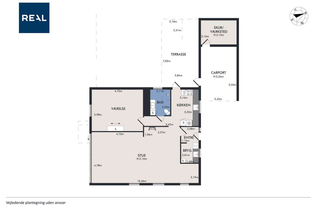
På en stor, hyggelig og yderst privat grund på hele 1.146 m2 finder I dette rummelige sommerhus med uanede muligheder. Her får I i alt 104 m2, hvor både inde- og udeliv går op i en højere enhed – perfekt til sommerhushygge, afslapning og livet i ro og fred.
Ejendommen byder på carport med tilhørende skur samt en dejlig overdækket terrasse, som forlænger sommeren og inviterer til lange aftener i læ for dug og regn.
Indenfor mødes I af en hyggelig entré og et godt, funktionelt bryggers. Husets hjerte er den kæmpestore stue, hvor der virkelig er plads til at samle familie og venner og lade sommerhuslivet udfolde sig. Det rummelige køkken har direkte udgang til den overdækkede terrasse – ideelt til grill, morgenkaffe og hyggelige middage.
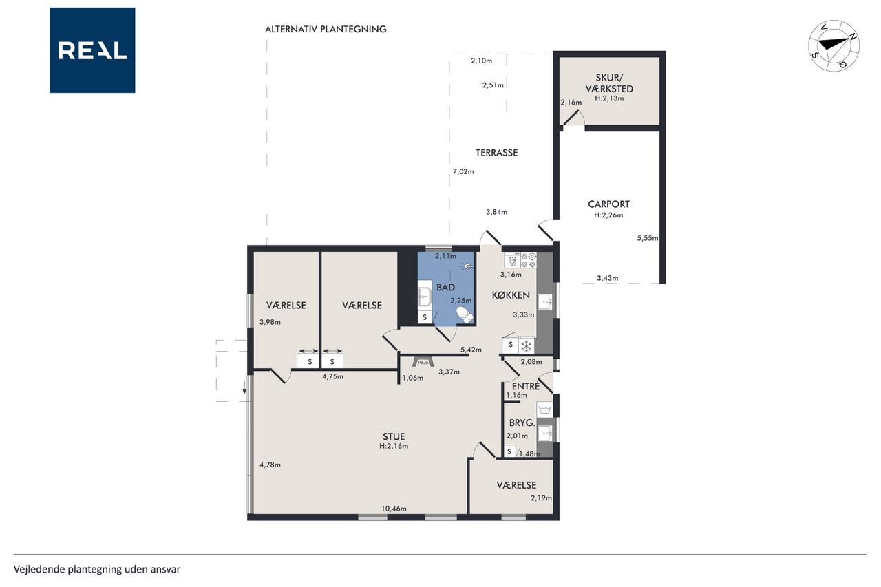
Derudover får I et stort badeværelse, så I slipper for de klassiske, små sommerhusløsninger, samt et stort soveværelse, som uden problemer kan opdeles i to, hvis behovet er for flere sovepladser.
Haven er noget helt særligt: yderst privat, vender syd/vest og giver sol det meste af dagen og aftenen. Her er masser af plads til fri leg, kongespil, fodbold og afslapning i grønne omgivelser.
Et sommerhus med plads, potentiale og en skøn beliggenhed – vi glæder os til at byde jer velkommen.