Gennemistandsat hus fra A til Z - med kig over marker
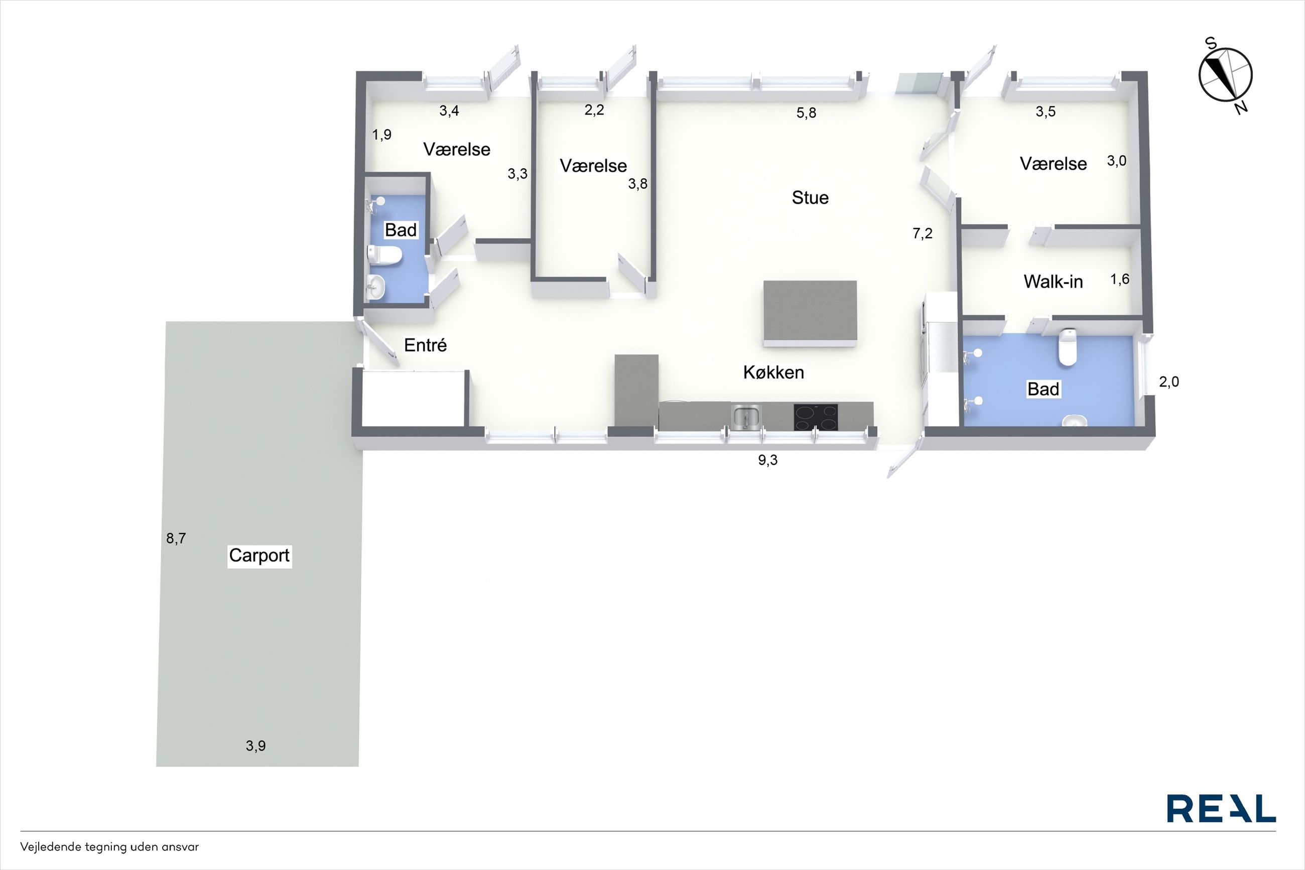
Velkommen til denne gennem istandsatte luksusvilla i Ledøje! Dette eksklusive hjem er beliggende med kig til marker og græssende heste. Når du træder ind i villaen, vil du straks blive mødt af en følelse af elegance, luksus og ikke mindst natur! De store vinduespartier giver et overvældende naturligt lys og en udsigt over det omkringliggende landskab.Her kombinerer vi altså de luksuriøse materialer, teknologi i topklasse, moderne design og en naturrig beliggenhed med udsigt! Hver eneste detalje er omhyggeligt udvalgt for at skabe en unik oplevelse af komfort, stil og udsigt. Alt sammen endda i en energivenlig ejendom med klassificering 'B', som opvarmes med luft-til-vand varmepumpe, via gulvvarme i hele boligen. Tillagt mekanisk ventilationsanlæg. Husets 118 m2 er istandsat fra top til tå, fra 2022 og frem til i dag. Grunden er på 802 idylliske kvadratmeter. Der er lavet følgende istandsættelser på ejendommen: - Gulvvarme i hele huset- Luft-til-vand varmepumpe- Ventilationsanlæg fra 2024- Nye lavenergivinduer og døre i hele huset (2022)- Nyt køkken fra 2022 - To nye badeværelser fra 2022- Nye gulve, vægge, lofter og indvendige døre i 2022- Nye elinstallationer i 2022- Ny fliseindkørsel i 2025- Ny træterrasse i 2025 Husets hjerte er opholdsstuen og det åbne køkken, som er udstyret med masser af skabs- og bordplads samt luksus hårde hvidevarer. I forbindelse med husets istandsættelse, er planløsning lavet helt forfra. Alle vægge er taget ned og etableret på ny og dermed har man kunne sikre sig en optimal udnyttelse af pladsen, hvilket har givet plads til følgende: - Åben entre med indbygget skab, hvor vaskefaciliteter er installeret- Badeværelse- To børneværelser i husets ene ende- Åbent køkken med køkken ø- Opholdsstue med gulv-til-loft vinduespartier mod syd- Forældreafdeling med walk-in closet og eget badeværelse med dobbelt bruser NB! Der er lavet følgende bemærkninger i tilstandsrapporten: Pkt. 1 vedr. tag (rød bemærkning). Pkt. 7 vedr. ydervægge (rød bemærkning). Pkt. 8 vedr. ydervægge (gul bemærkning). Pkt. 15 vedr. gulve (gul bemærkning). Landsbyen Ledøje: Her får du glæde af fredfyldte omgivelser blandt søer, marker, gadekær og ikke mindst den områdekendte og særdeles populære 'Jordbærgården'. Få hundrede meter væk, ligger stien, der langs åbne vidder og marker, bringer dig til Vestskoven og Vikingelandsbyen i Risby.Derudover er der cykelsti til Smørum, hvor der er skoler, Smørum centret, idrætsklub, golfklub og bibliotek. Der er børnehave og integreret vuggestue lokalt i Ledøje. Trods de landlige omgivelser, er der under 5 minutters kørsel til indkøb i Netto. Nogenlunde samme tid tager det, at tage den nyere tværvej til Smørum Centeret eller Idrætsklubben. På omkring 10 minutters kørsel når du Ballerup Centeret og Ballerup Station. Der er ca. 25 minutters kørsel til indre København, via den nyere motorsvejstilkørsel mellem Ledøje og Smørum.
Prøv vores klimaberegner og find de mest rentable energiforbedringer til netop din bolig. Sammensæt dine egne løsninger og se straks den samlede gevinst for både din økonomi og for klimaet.
Forbedringer til
Haretoften 7 Ledøje
Vis
Hvad er din bolig værd lige nu?
Få et lynhurtigt prisestimat på din bolig. Indtast din adresse og svar på 3 korte spørgsmål om boligens stand – så viser vi dig, hvad den cirka kan handles for i dag
Hvor ligger din bolig?
Vi kan desværre ikke beregne en pris på den valgte adresse. Vælg venligst en anden adresse.
Bemærk: Beregneren gælder for almindelige ejerboliger og sommerhuse. Har du en andelsbolig, ideel anpart, landbrug, nybyg eller ejendom med erhverv? Så giv din lokale mægler et kald for en præcis vurdering.
Hvor god er...
din bolig's beliggenhed?
Hvor god er...
din bolig's indvendige stand?
Hvor god er...
din bolig's udvendige stand?
Hvilken type bolig bor du i?
Vil du have den korrekte pris?
Kontakt os allerede i dag for en gratis og uforpligtende vurdering. Her får du den rigtige pris.
* Der samles ingen personlige oplysninger uden dit udtrykkelige samtykke.
Ved at klikke på denne checkboks giver du dit samtykke til, at dine data samles og behandles af RealMæglerne A/S for at kunne kontakte dig.
Du kan til enhver tid tilbagekalde dit samtykke. For at gøre dette skal du blot sende en meddelelse til info@realmaeglerne.dk.
Læs mere på privatlivspolitikkerne.
Glemt adgangskode
Tilmeldt via. mægler
Kontakt Mægler
Tak for din interesse
Mægleren vil kontakte dig hurtigst muligt
Tak for din tilmelding til åbent hus!
Adresse:
Dato:
Tidspunkt:
Vi glæder os til at vise dig boligen. Har du spørgsmål inden vi ses, kan du kontakte fra RealMæglerne
Vi glæder os til at vise dig boligen. Har du spørgsmål inden vi ses, er du velkommen til at kontakte os