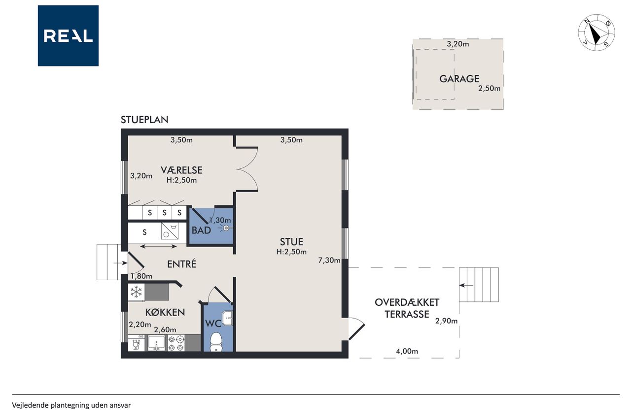
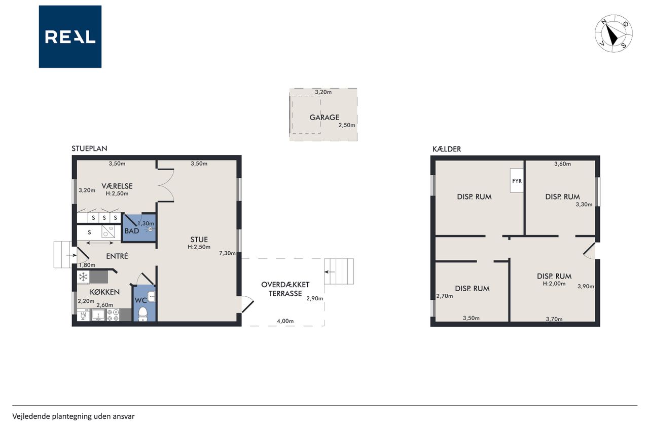
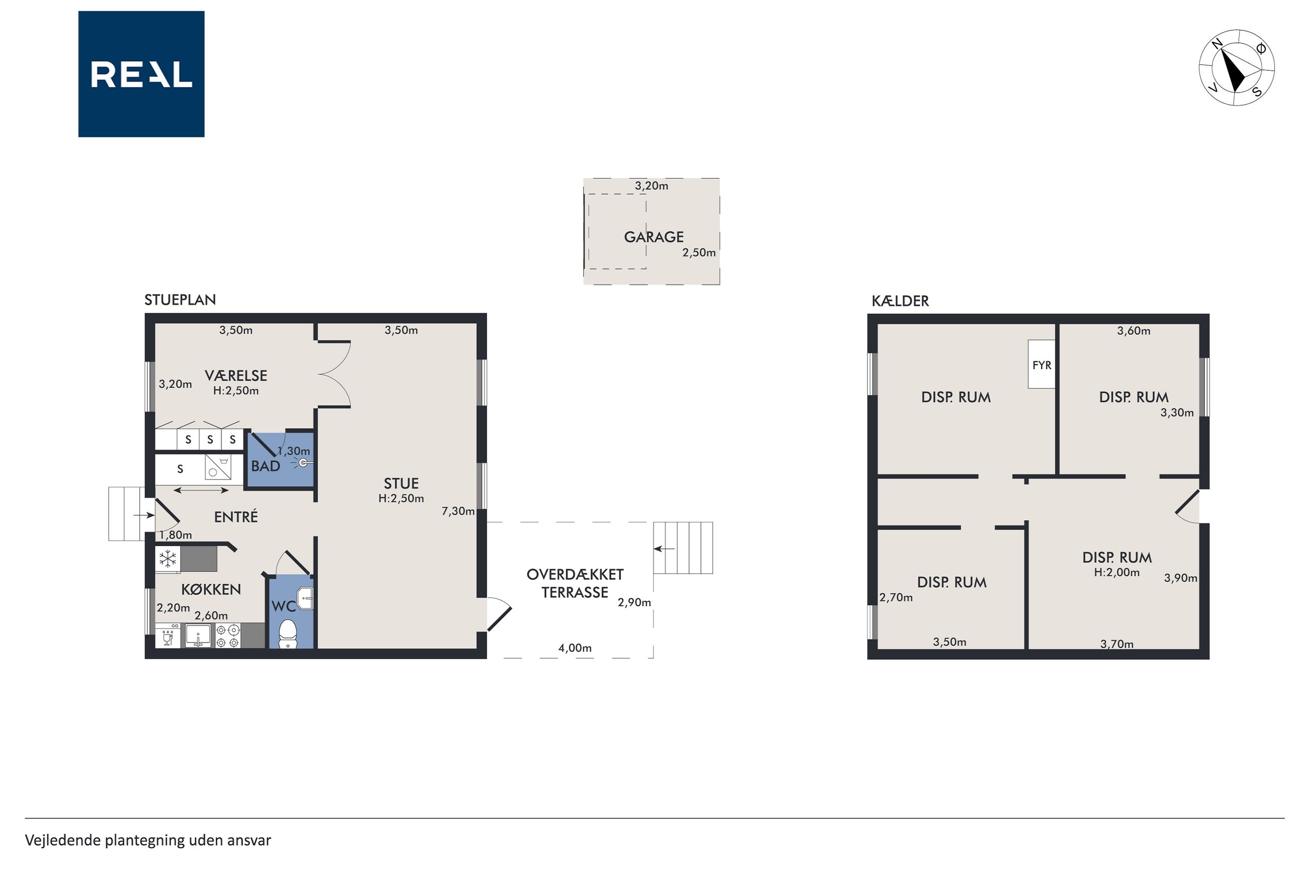
Velkommen til dette charmerende rækkehus fra 1940, der byder på en unik kombination af klassisk charme og moderne muligheder. Beliggende næsten sidst på vejen i et eftertragtet kvarter, tilbyder denne ejendom en rolig og familievenlig atmosfære med nærhed til alle nødvendige faciliteter. Med et boligareal på 61 kvadratmeter samt en lige så stor kælder, er der rig mulighed for at skabe dit drømmehjem.
Når du træder ind i stueplanen, mødes du af en indbydende entré med praktisk skabsplads. Herfra ledes du videre til det funktionelle køkken, hvor madlavning bliver en leg. Det tilstødende toilet er ideelt placeret for gæster og dagligt brug. Den rummelige stue inviterer til hyggelige stunder med familien eller afslapning foran fjernsynet. Fra stuen er der direkte adgang til den overdækkede terrasse – perfekt til udendørs middage eller morgenkaffe i solen.
Soveværelset er lyst og luftigt med adgang til eget badeværelse, hvilket sikrer privatlivets fred og komfort. Dette hjems layout er gennemtænkt for at maksimere pladsudnyttelsen uden at gå på kompromis med æstetikken.
Kælderen rummer store muligheder for den kreative køber. Med flere disponible rum kan kælderen let omdannes til ekstra opholdsrum, hobbyværksted eller teenageafdeling – kun fantasien sætter grænser! Derudover er der mulighed for etablering af endnu et badeværelse hernede, hvilket vil tilføre yderligere værdi og funktionalitet.
Selvom kælderen står råt flere steder og trænger til færdiggørelse, giver det dig som ny ejer muligheden for at sætte dit helt eget præg på indretningen og materialevalget. En fordel ved ejendommen er også muligheden for at etablere en trappe ned fra boligdelen direkte ned i kælderen, hvilket vil forbedre adgangen betydeligt.
Udendørs finder du en stor have – et sandt paradis for både børnene at lege i og de voksne at slappe af eller dyrke havearbejde. Haven har tidligere huset en garage (stadig registreret på BBR), hvilket giver mulighed for genopbygning afhængigt af dine behov.
Dette rækkehus repræsenterer ikke blot et hjem men også en investering i livskvalitet takket være beliggenheden i et populært område kendt for sin venlige naboskab og nærhed til skoler, butikker samt offentlig transport.