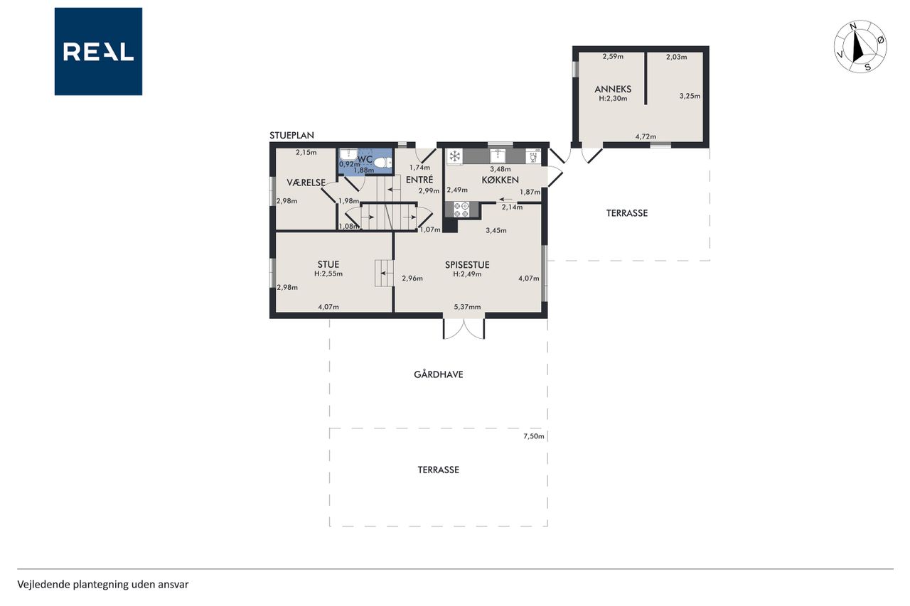
Velkommen til denne sjældent udbudte murermestervilla, beliggende i hjertet af Køge Centrum. Denne charmerende ejendom fra 1953 emmer af klassisk murermestercharme og byder på et boligareal på 89 kvadratmeter samt en anvendelig kælder på yderligere 32 kvadratmeter. Her finder du en bolig, der kombinerer historisk charme med moderne bekvemmeligheder, perfekt for dem der søger et hyggeligt hjem i en central beliggenhed.
Indenfor mødes du af en varm og indbydende atmosfære, hvor de forskudte plan giver huset en unik karakter. Den store spisestue er ideel til familiemiddage eller sammenkomster med vennerne, mens de smukke plankegulve og den høje loftshøjde bidrager til husets elegante udtryk. Det nyligt istandsatte køkken tilbyder rigelig opbevaringsplads og har direkte udgang til den skønne have og terrasseområde - det perfekte sted at nyde morgenkaffen eller lange sommeraftener.
På første sal finder du to gode værelser samt et toilet, alle med god lofthøjde som sikrer rummelighed og komfort. Kælderen er ligeledes funktionel med badeværelse, bryggers samt ekstra opbevaringsmuligheder - alt sammen i god stand og klar til indflytning.
Udenfor venter dig et dejligt terrassemiljø omgivet af en velholdt have, hvor der også findes et anneks - perfekt som gæstehus eller hobbyrum. Ejendommen ligger blot få minutters gang fra Køge Torv, hvilket gør det nemt at nyde byens mange tilbud såsom caféer, butikker og kulturelle begivenheder.
Transportmulighederne er optimale med nem adgang til motorvej samt stationen hvor hurtigttoget bringer dig hurtigt videre mod København eller andre destinationer. Området er kendt for sit gode naboskab – her vil du føle dig hjemme fra dag ét.
R150
Torvebyen 11
4600 Køge