Søg bolig

0 Boliger til salg

Havrevænget 23, 4681 Herfølge

Sagsnummer 150-1161
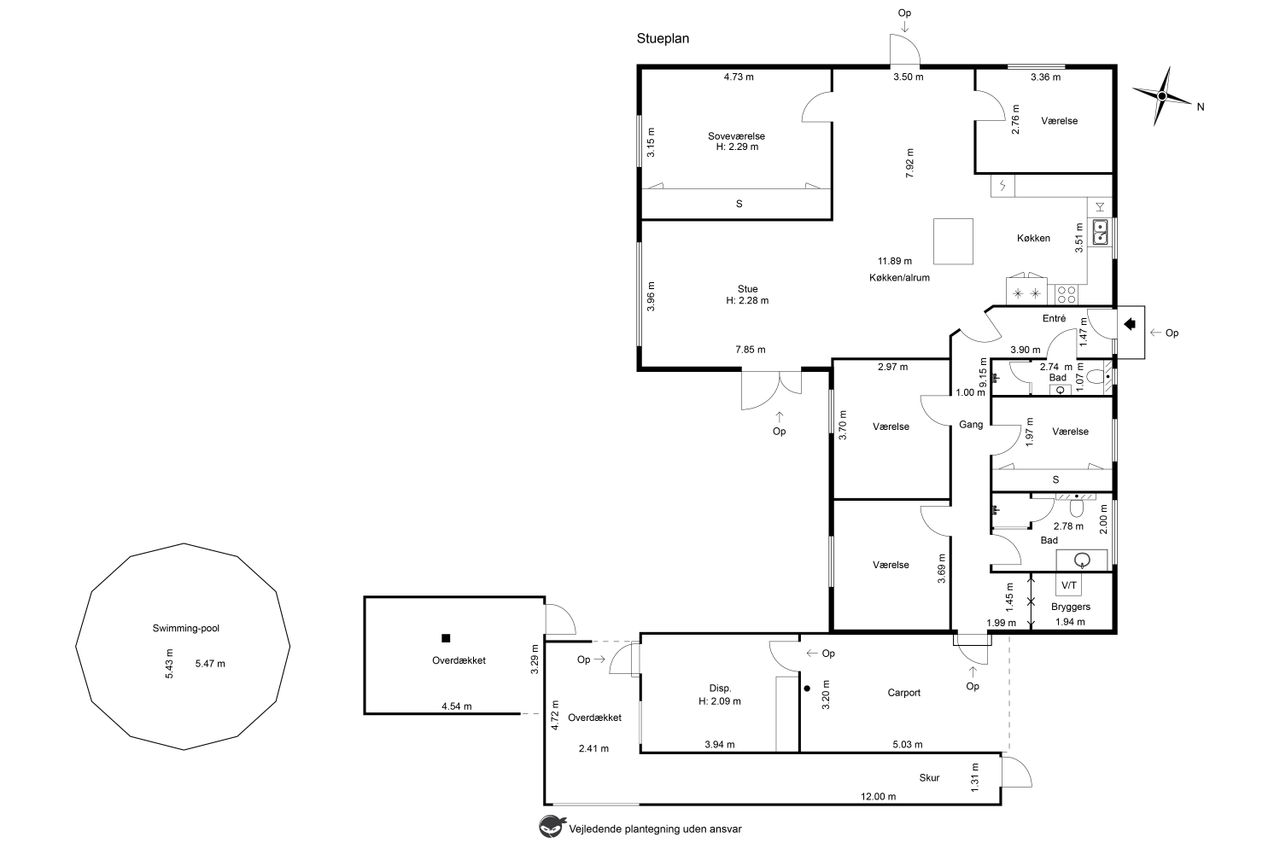
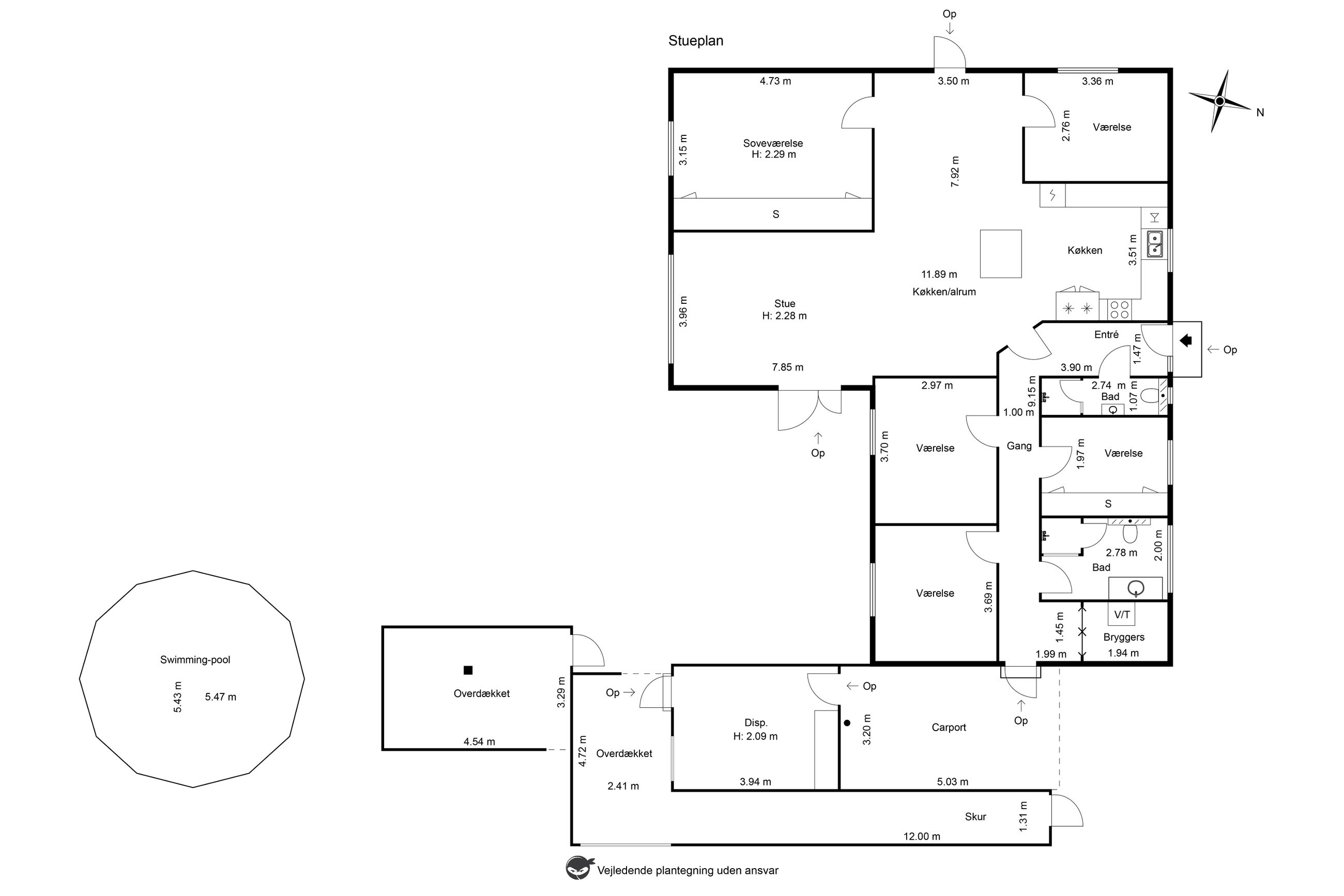
Boligtype Villa
Boligareal 174 m2
Grundareal 956 m2
Carport 50 m2
Bygget/ombygget 1967 / 2018
Antal rum 6
Etager 1
   
Energimærke
   

Kontantpris kr. 4.495.000

Udbetaling kr. 225.000
Brutto kr. 23.669
Netto kr. 19.218
Ejerudgift kr. 2.845
Brutto og Netto er eksklusiv ejerudgifter

Kom til fremvisning Hent salgsopstilling

Kontakt

RealMæglerne Køge v/ Riis & Co. ApS
R150 Torvebyen 11 4600 Køge Mail: koege@mailreal.dk
Tlf.: 3224 1200


Drømmevilla i Herfølge: Moderne komfort og sydlandsk charme

Velkommen til denne enestående villa beliggende i hjertet af Herfølge, hvor moderne komfort møder sydlandsk charme. Denne imponerende ejendom blev oprindeligt bygget i 1967 og har gennemgået en omfattende tilbygning i 2017, hvilket har resulteret i et hjem med optimal planløsning og stilfulde

.. Læs mere...

Er der økonomi til boligen?

Kontantpris kr. 4.495.000
Udbetaling kr. 225.000
Ejerudgift kr. 2.845

Kontakt

RealMæglerne Køge v/ Riis & Co. ApS
Torvebyen 11
4600 Køge
Mail: koege@mailreal.dk
Tlf.: 3224 1200

Skriv din pris

Giv et uforpligtende bud. Dit bud er ikke bindende for dig, ligesom sælger ikke er forpligtet til at acceptere dit bud.

* Der samles ingen personlige oplysninger uden dit udtrykkelige samtykke. Ved at klikke på denne checkboks giver du dit samtykke til, at dine data samles og behandles af RealMæglerne A/S for at kunne kontakte dig. Du kan til enhver tid tilbagekalde dit samtykke. For at gøre dette skal du blot sende en meddelelse til info@realmaeglerne.dk. Læs mere på privatlivspolitikkerne.

Bestil Salgsopstilling

* Der samles ingen personlige oplysninger uden dit udtrykkelige samtykke. Ved at klikke på denne checkboks giver du dit samtykke til, at dine data samles og behandles af RealMæglerne A/S for at kunne kontakte dig. Du kan til enhver tid tilbagekalde dit samtykke. For at gøre dette skal du blot sende en meddelelse til info@realmaeglerne.dk. Læs mere på privatlivspolitikkerne.

Bestil fremvisning

Ved at indsende formularen, giver du dit samtykke til, at dine data samles og behandles af RealMæglerne A/S for at kunne kontakte dig. Du kan til enhver tid tilbagekalde dit samtykke. For at gøre dette skal du blot sende en meddelelse til info@realmaeglerne.dk. Læs mere på privatlivspolitikkerne.
Fandt du ikke det du søgte? - Opret dig som bruger og få mere ud af din boligsøgning
Dit RealMæglerne

Log ind på RealMæglernes Boligagent

Med Mit RealMæglerne er det nemt at følge boligmarkedet. Leder du efter nyt, kan du gemme dine favorit boliger og målrette din søgning ned til mindste detalje. Skal du sælge, kan du løbende følge interessen for din bolig og meget mere.


Kontakt Mægler

Din bolig

* Der samles ingen personlige oplysninger uden dit udtrykkelige samtykke. Ved at klikke på denne checkboks giver du dit samtykke til, at dine data samles og behandles af RealMæglerne A/S for at kunne kontakte dig. Du kan til enhver tid tilbagekalde dit samtykke. For at gøre dette skal du blot sende en meddelelse til info@realmaeglerne.dk. Læs mere på privatlivspolitikkerne.

Tilmeld til åbent hus

Adresse:
Dato:
Tidspunkt:

Kontakt Mægler

* Der samles ingen personlige oplysninger uden dit udtrykkelige samtykke. Ved at klikke på denne checkboks giver du dit samtykke til, at dine data samles og behandles af RealMæglerne A/S for at kunne kontakte dig. Du kan til enhver tid tilbagekalde dit samtykke. For at gøre dette skal du blot sende en meddelelse til info@realmaeglerne.dk. Læs mere på privatlivspolitikkerne.

Bestil gratis salgsvurdering

Din bolig

Send salgsvurdering til:

Vælg mægler

* Der samles ingen personlige oplysninger uden dit udtrykkelige samtykke. Ved at klikke på denne checkboks giver du dit samtykke til, at dine data samles og behandles af RealMæglerne A/S for at kunne kontakte dig. Du kan til enhver tid tilbagekalde dit samtykke. For at gøre dette skal du blot sende en meddelelse til info@realmaeglerne.dk. Læs mere på privatlivspolitikkerne.

Bestil gratis salgsvurdering

Din bolig

Send salgsvurdering til:

Vælg mægler

* Der samles ingen personlige oplysninger uden dit udtrykkelige samtykke. Ved at klikke på denne checkboks giver du dit samtykke til, at dine data samles og behandles af RealMæglerne A/S for at kunne kontakte dig. Du kan til enhver tid tilbagekalde dit samtykke. For at gøre dette skal du blot sende en meddelelse til info@realmaeglerne.dk. Læs mere på privatlivspolitikkerne.