Dette moderne rækkehus, opført i 2018, emmer af stil, funktionalitet og skønne familievenlige rammer. Her får I et hjem, hvor hver en detalje indbyder til komfort og hygge.
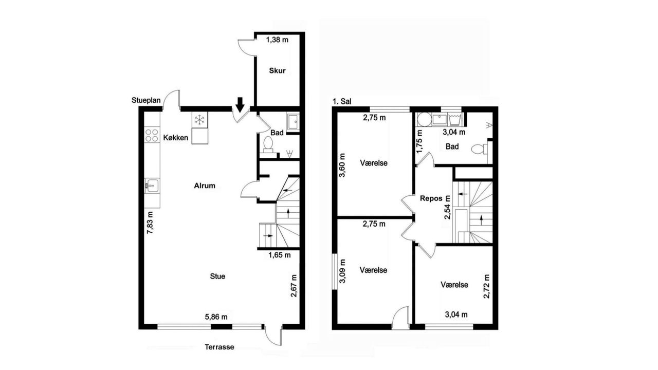
Når I træder ind i stueplanets rummelige entré, åbner boligen sig op og fører jer ind i det store, åbne køkkenalrum – et sandt samlingspunkt. Her er der luft og lys, ideelt til madlavning og hyggeligt samvær omkring spisebordet. Fra alrummet er der direkte udgang til et solrigt udeareal, hvor I kan nyde morgenkaffen og grille med vennerne. Et badeværelse i stueplan sikrer bekvemmelighed for hele familien og giver et praktisk præg til den daglige komfort.
På førstesalen finder I tre lyse og rummelige soveværelser – hvert rum med plads til både seng og skabe. Heroppe er der også et endnu et badeværelse, hvilket gør boligen ekstra familievenlig og giver plads til både privatliv og fælles øjeblikke. Hele huset er indrettet med en moderne og velholdt stil, og der er ikke noget, der skal gøres – bare pak ud og begynd jeres nye kapitel her.
Som en ekstra luksus tilbyder ejendommen muligheden for leje eller køb af en parkeringsplads i en aflåst parkeringskælder. Det er en sikker og praktisk løsning, der giver ro i sindet og nem adgang til bilen året rundt. Der er til ejendommen tilknyttet et skur hvilket findes i forhaven, hvilket giver ekstra opbevaringsplads
Ringholmvej ligger i et roligt og eftertragtet kvarter, hvor natur og by smelter sammen. Med de smukke rekreative områder ved Degnemosen og Bellahøj Park som naboer kan I nyde afslappende gåture, løbeture eller en dag i naturen lige uden for døren. Samtidig er hverdagsfaciliteter som bager, dagligvarebutikker og gode busforbindelser blot et stenkast væk. Grøndalscentret og Vanløse Metro nås hurtigt på cykel og giver let adgang til hele København, så I har alt det bedste af byen lige ved hånden.
Dette rækkehus er for jer, der drømmer om et hjem med hjerterum og funktionalitet, omringet af naturskønne omgivelser og tæt på alt det nødvendige. Velkommen hjem til Ringholmvej 30!