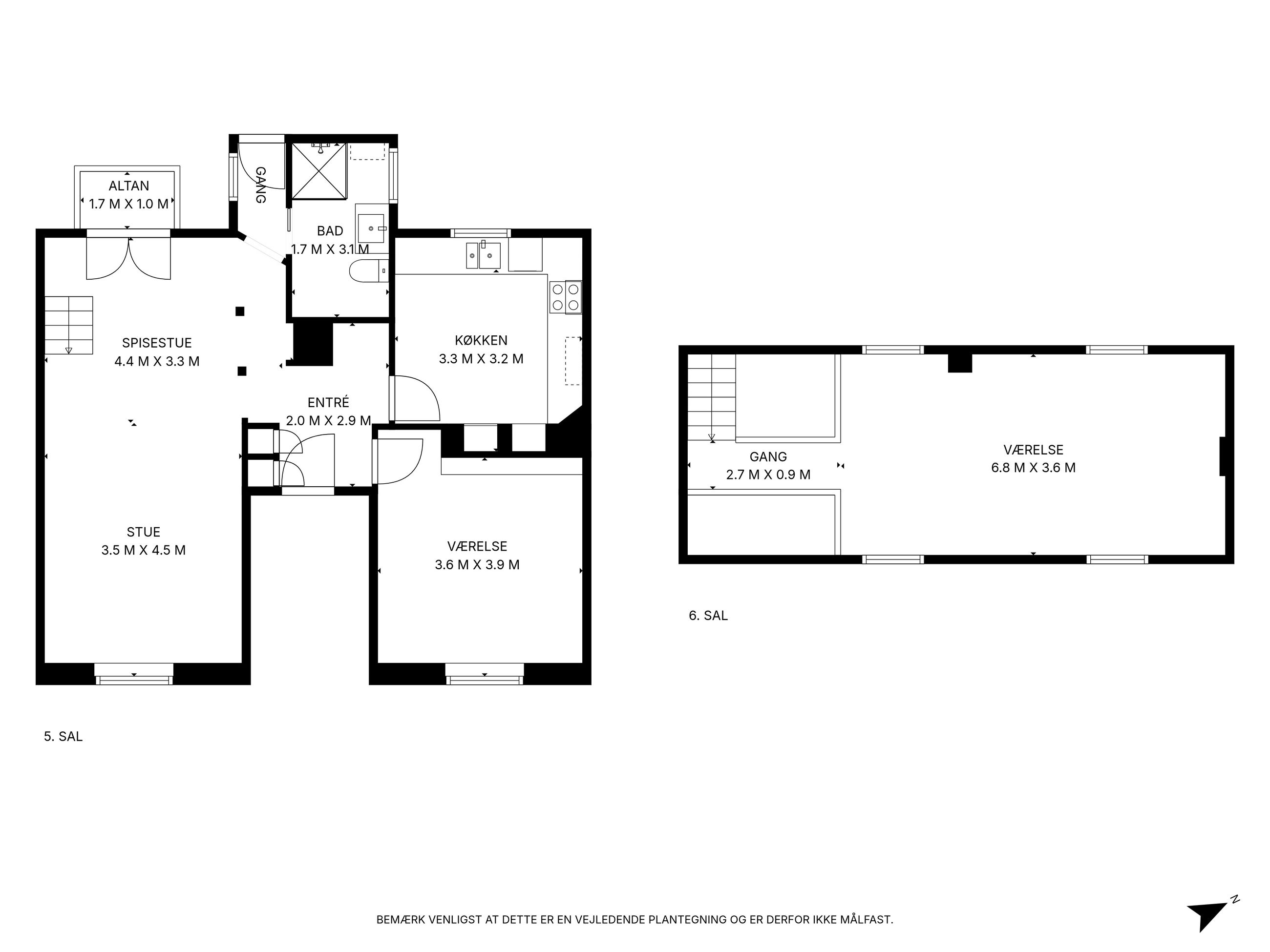
"Unik og charmerende 3-værelses lejlighed på 93 m2 med delvist loft til kip og ca. 12 m2 brugbar overetage/hems.
Centralt på Frederiksberg i smuk, klassisk ejendom fra 1904 findes denne unikke lejlighed øverst oppe med en fantastisk fri udsigt og et sjældent set lysindfald, som giver en varm, indbydende stemning. Lejligheden fremstår i flot stand med mange fine detaljer bl.a. fritliggende bjælker, radiatorskjulere og særdeles smukke og velholdte plankegulve.
Indretningen byder på: rummelig entré, velindrettet hvidt spisekøkken med masser af skabsplads og kontor- eller børneværelse ligeledes med god skabsplads. Hertil kommer en opholdsstue/spisestue med loft til kip, som giver en dejlig følelse af lys og luft med udgang til solrig udsigtsaltan, hvor eftermiddags- og aftensolen kan nydes (Kan etableres som separat opholdsstue og spisestue). En flot trappe fører op til overetagen, hvor en unik gangbro giver adgang til et rummeligt opholdsrum med Velux-vinduer. Badeværelset er stort og komfortabelt med glasbruseniche og god plads.
Ejendommen byder på fællesvaskeri og brugsret til pulterrum både i kælderen og ved bagtrappen samt skabsplads foran lejlighedsdøren.
Som en ekstra bonus er der adgang til en hyggelig fælles have med bålplads og grill – et oplagt sted til afslapning og socialt samvær under åben himmel. Alt i alt en bolig med masser af sjæl, lys og funktionalitet, perfekt til dig der ønsker både karakter og charme, men stadig vil bo tæt på alt det, Frederiksberg har at byde på."
Velkommen til Nordre Fasanvej 155B, 5.sal.