SKØN BOLIG – CENTRALT I BRØNDBYØSTER
Velkommen til Højstens Boulevard, hvor du finder dette dejlige rækkehus beliggende på en lukket vej. Området er eftertragtet og her er er du i kort gåafstand til Brøndbyøster Torv og S-tog. Tilmed er du tæt på Brøndbyskoven, så her smelter hverdagen sammen med gode oplevelser i de naturskønne områder.
Desuden er der kort afstand til flere gode indkøbsmuligheder, skole og sportsfaciliteter.
Nyere vinduer
Ejendommen er opført i mursten og er løbende vedligeholdt. Ejendommen byder således på nyere termovinduer. Endvidere er der en og praktisk stor garage. Stor forhave belagt med løse sten of skøn baghave, hvor man kan nyde eftermiddagssolen på den nyere træterrasse. Ejendommen er opført i 1962.
Lys, luft og store rum
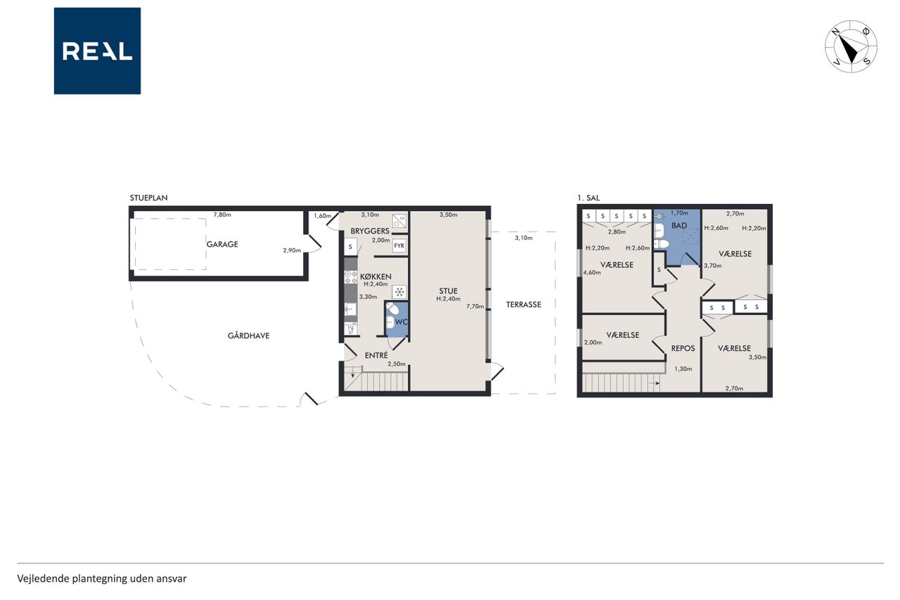
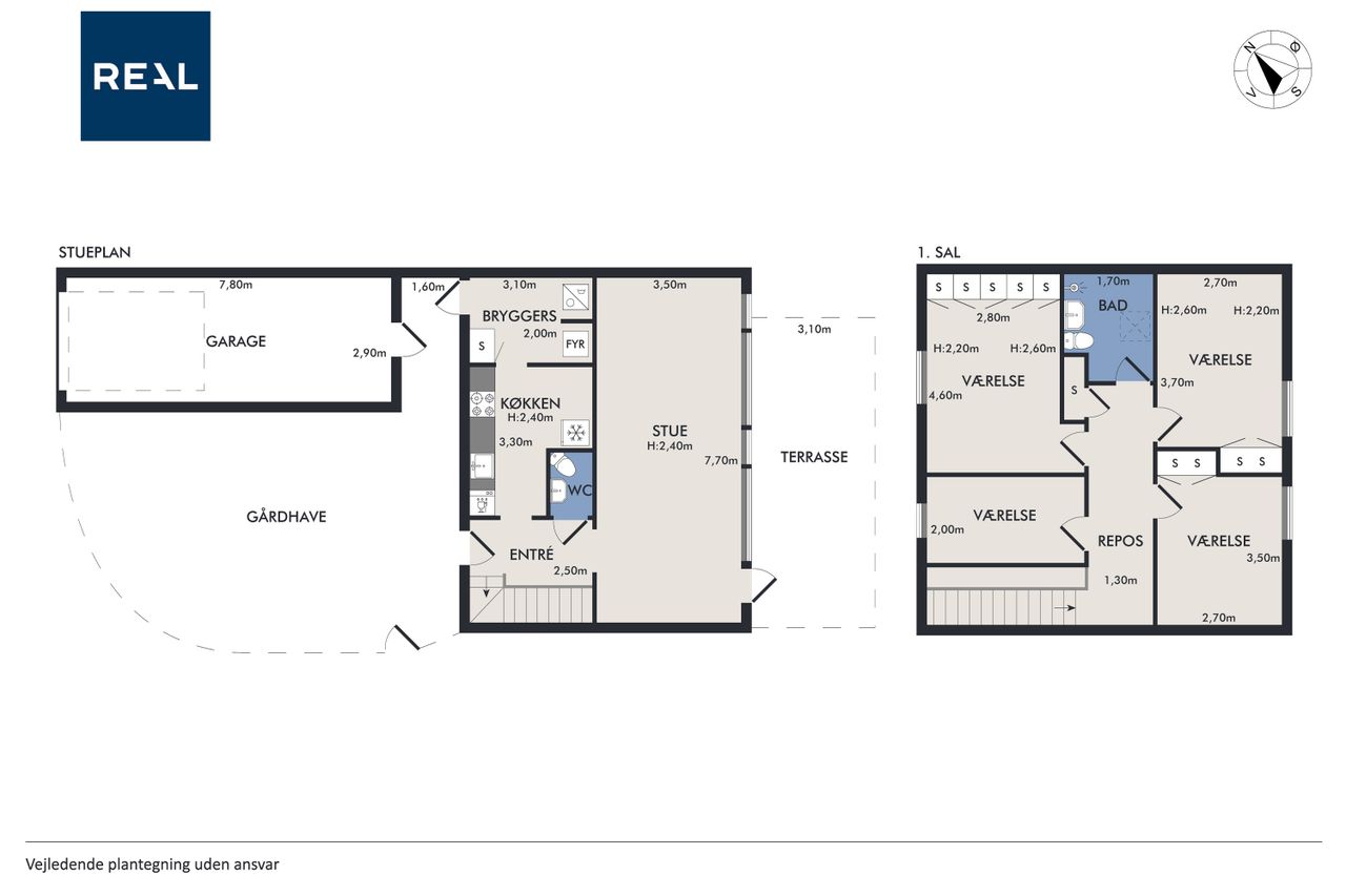
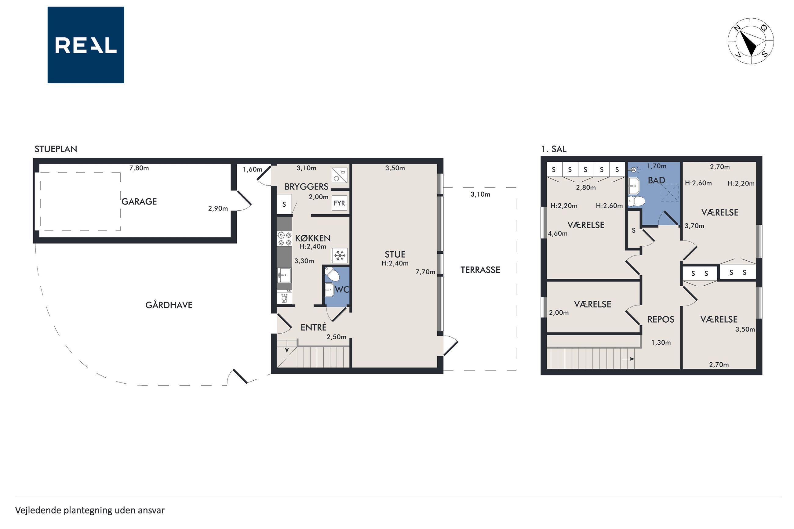
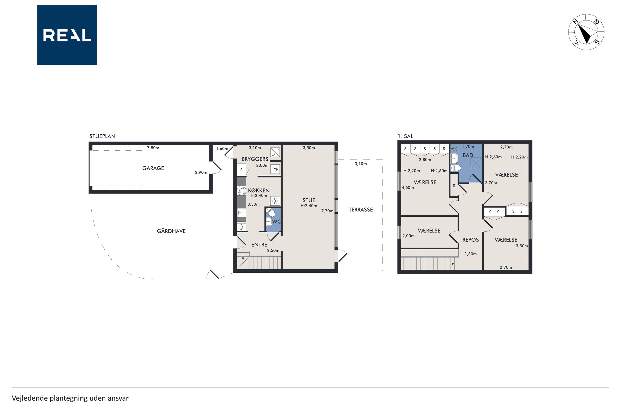
Indenfor er stilen lys og indbydende og de store vinduespartier sørger for et skønt lysindfald. Boligen har en god planløsning og de 122 kvadratmeter, som er fordelt på stueplan og førstesal, giver en god balance mellem fællesrum og private områder.
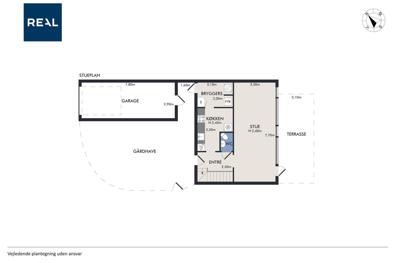
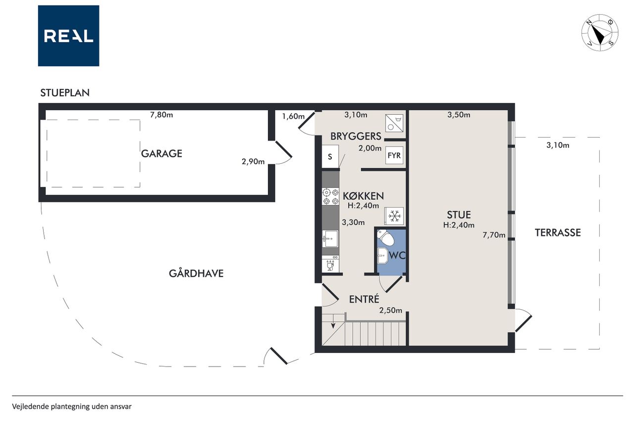
Stueplan – hjemmets hjerte
I stueplan bliver du mødt af den lyse entre, der leder dig videre ud til boligen dejlige køkken. Køkkenet fremstår med flotte lyse elementer og fine hårde hvidevarer. Fra køkkenet er der adgang til praktisk bryggers med egen ind/udgang. Skøn stue med stort vinduesparti der sørger for er skønt lysindfald. Fra stuen er der udgang boligens dejlige terrasse og solrige have. Endvidere er der et ekstra toilet i stueetagen.
1. sal – hele 4 værelser og et flot badeværelse
På førstesalen finder du fire værelser der kan fordeles efter behov. På flere af værelserne er der indbyggede skabe. Flot badeværelse med bruseniche og lækkert ovenlys vindue.
Solrige haver
Med i købet får du en dejlig forhave der er belagt med løse sten samt en skøn baghave med en nyere træterrasse. Med både for- og baghave er du sikret sol hele dagen. Ydermere får du også en stor garage, så bilen kan holdes fri for is og sne i de kolde vintermåneder. Garagen kan også benyttes til opbevaring.