SKØN BOLIG – CENTRALT I ISHØJ
Velkommen til et af Ishøj’s mest eftertragtede områder, hvor du finder dette dejlige rækkehus beliggende på en lukket vej. Her er du i kort gåafstand til Ishøj Bycenter og S-tog, Ishøj Havn, Strandparken, den skønne badestrand og ikke mindst skønne naturarealer. Her smelter hverdagen sammen med gode oplevelser i de naturskønne områder.
Desuden er der kort afstand til flere gode indkøbsmuligheder, skole og sportsfaciliteter.
Nyere vinduer
Ejendommen er opført i mursten og er løbende vedligeholdt. Taget er et fint tagpap tag, samt der er gode og nyere termovinduer. Ejendommen byder endvidere på en indbydende og flisebelagt indkørsel og stor carport. Ejendommen er opført i 1973.
Lys, luft og store rum
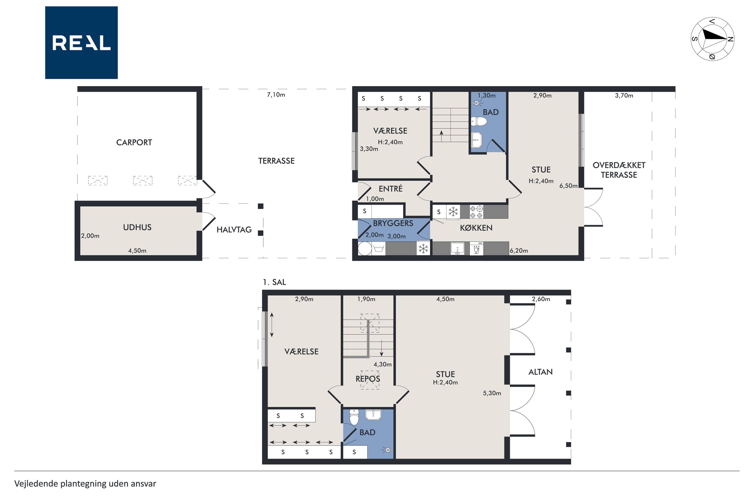
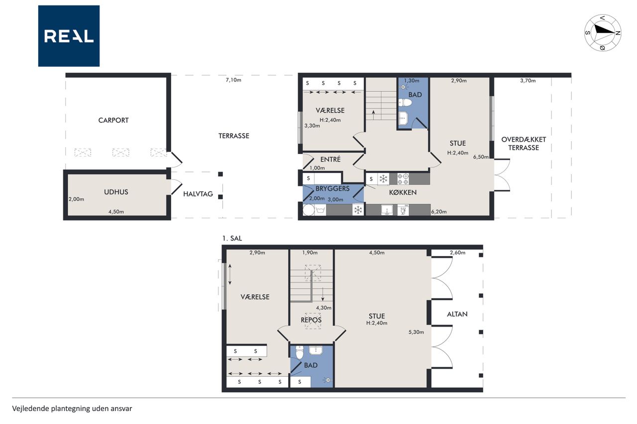
Indenfor er stilen lys og indbydende og de store vinduespartier sørger for et skønt lysindfald. Boligen har en god planløsning og de 134 kvadratmeter, som er fordelt på stueplan og førstesal, giver en god balance mellem fællesrum og private zoner.
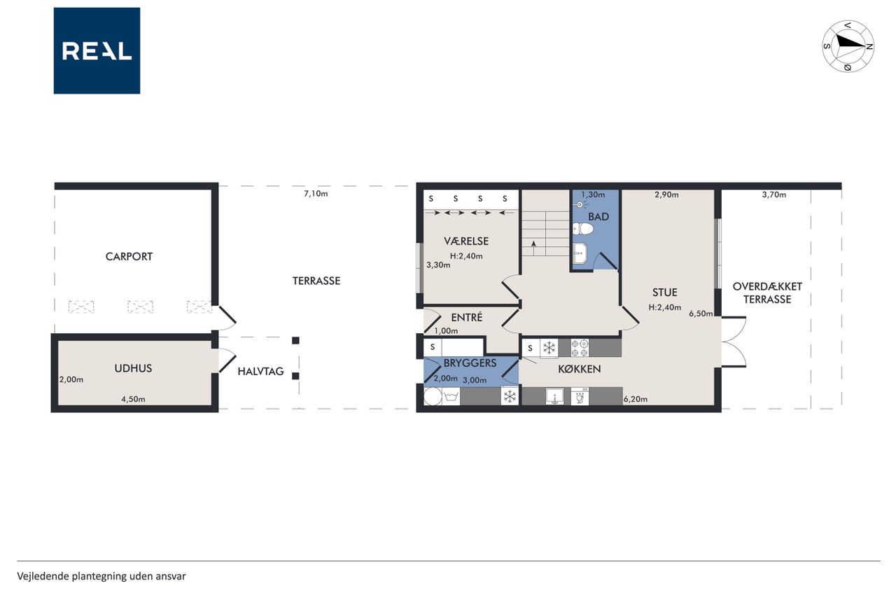
Stueplan – hjemmets hjerte
I stueplan bliver du mødt af det lyse køkken/alrum, der fungerer som hjemmets naturlige samlingspunkt. Her er god plads til både madlavning, samvær og lektielæsning. Her er også et skønt værelse med indbyggede skabe. Man kan nemt (gen)etablere en skillevæg ved køkkenet, hvorved man kan opnå et ekstra værelse. Badeværelse med pæne fliser og brus. Lækkert bryggers med god aflægger plads og en ekstra dør til forhaven. Fra køkkenet er er udgang til boligens dejlige overdækkede terrasse og solrige have.
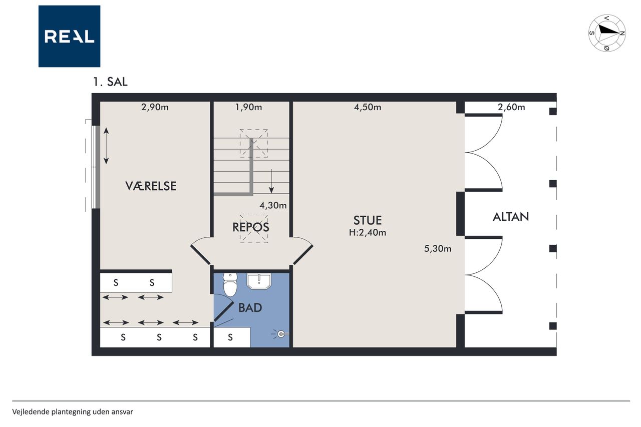
1. sal – skøn stue og ekstra badeværelse
På førstesalen finder du ”master-bedroom” og her er lavet et dejligt ”walk-in” closet i forlængelse af værelset. Flot badeværelse med bruseniche. Stor stue med vinduer i hele rummets bredde og udgang til herlig altan, hvor aften solen virkelig kan nydes. Såfremt der ønskes flere rum/værelser på førstesalen, så kan man også dele stuen op med en skillevæg.
Solrige haver
Med i købet får du en dejlig flisebelagt forhave og en skøn baghave med overdækket terrasse. Ydermere får du også en stort carport, så bil og cykler kan hildes fri for sne samt et stort og praktisk udhus.
Velkommen til Vildtbaneparken 91