Velkommen til denne charmerende villa fra 1940, der byder på en unik mulighed for at skabe dit drømmehjem. Med et boligareal på hele 178 kvadratmeter fordelt over to plan, er denne ejendom ideelt for familien, der ønsker både plads og potentiale. Beliggende i det eftertragtede blomsterkvarter, får du her en bolig med sjæl og historie.
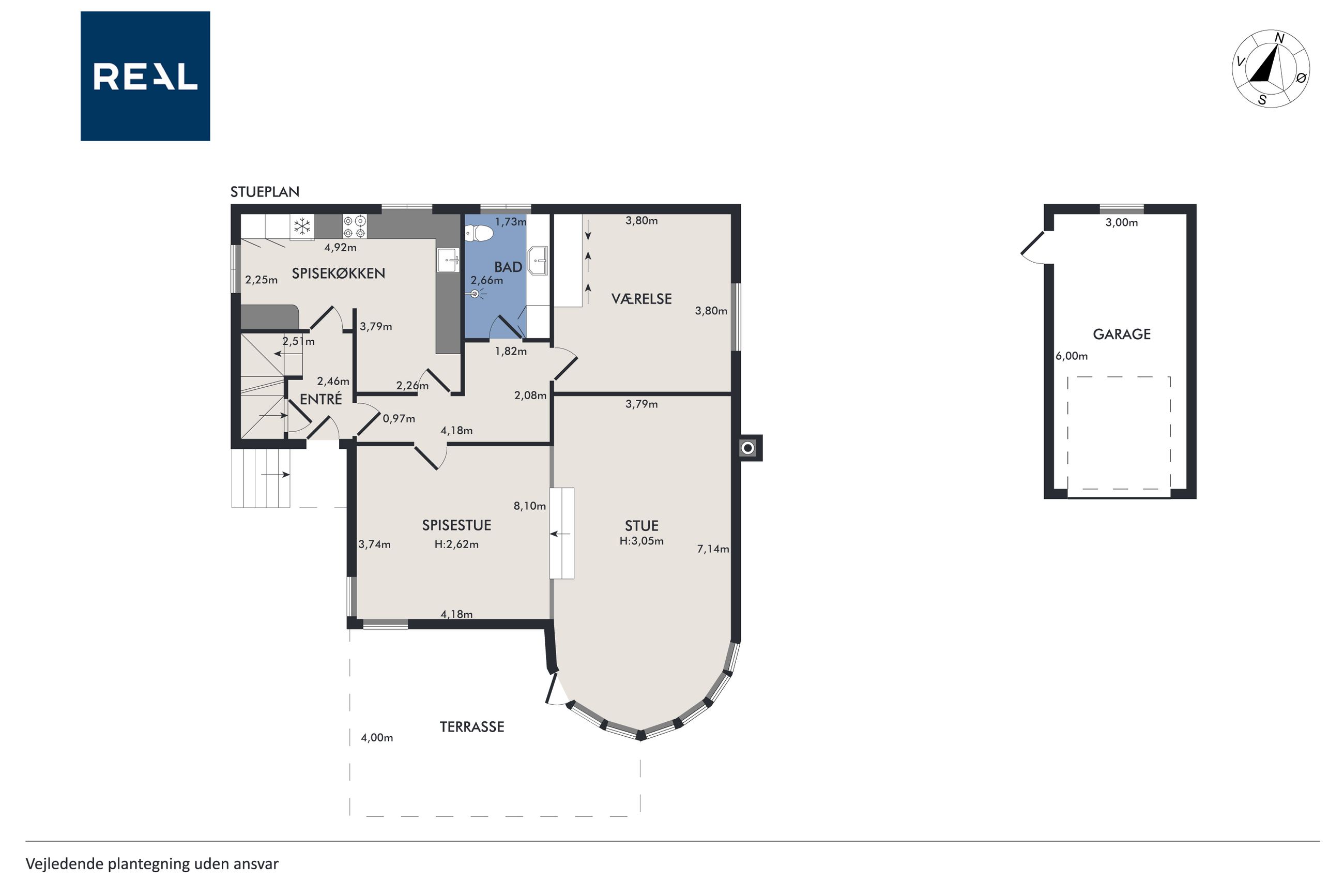
Stueplanet præsenterer sig med en rummelig entré, der fører videre til en fordelingsgang. Herfra har du adgang til tre lyse værelser, 2 udnyttet som henholdsvis stue og spisestue, samt et badeværelse og et køkken. Stueetagen er udstyret med delvise originale parketgulve samt en smuk karnap, som sikrer et fantastisk lysindfald dagen lang. Fra stuen kan du træde direkte ud på terrassen og videre ned i den sydvendte, ugenerte have - perfekt til hyggelige grillaftener eller afslapning under åben himmel.
Førstesalen tilbyder yderligere muligheder med sine tre værelser, køkken og badeværelse samt en stor balkon. Huset har tidligere været et to-families hus, hvorfor indretningen også udformer sig sådan.
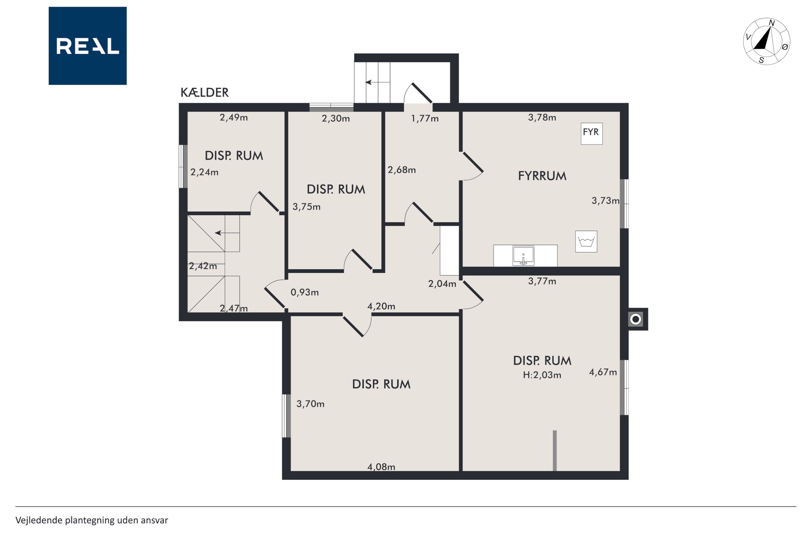
Kælderen rummer fire disponible rum samt bryggers/fyrrum – ideel til opbevaring eller hobbyaktiviteter. Ejendommen inkluderer også en garage, så bilen altid står trygt parkeret.
Beliggenheden er sublim; kun ti minutters cykeltur fra Amager Strandpark og tæt på indkøbsmuligheder gør hverdagen nemmere. Sundbyvester Plads ligger en kort gåtur fra huset, hvorfra turen til byen er lige til.
ET HUS FRA DEN FUNKTIONALISTISKE PERIODE: UNIK ARKITEKTUR, FANTASTISKE RUM OG EN PRAKTISK PLANLØSNING.
Amagerbrogade 180
2300 København S